Gballam Posted yesterday at 12:41 Posted yesterday at 12:41 Hi all, We are trying to create a thermally-efficient, cost effective family home and the comments here are always helpful. Please let me know thought on this design. We're thinking Cedral Click in Metal Green for cladding and a light grey standing seam steel roof/cladding on the front facade. Many thanks :) House plans.pdf 1
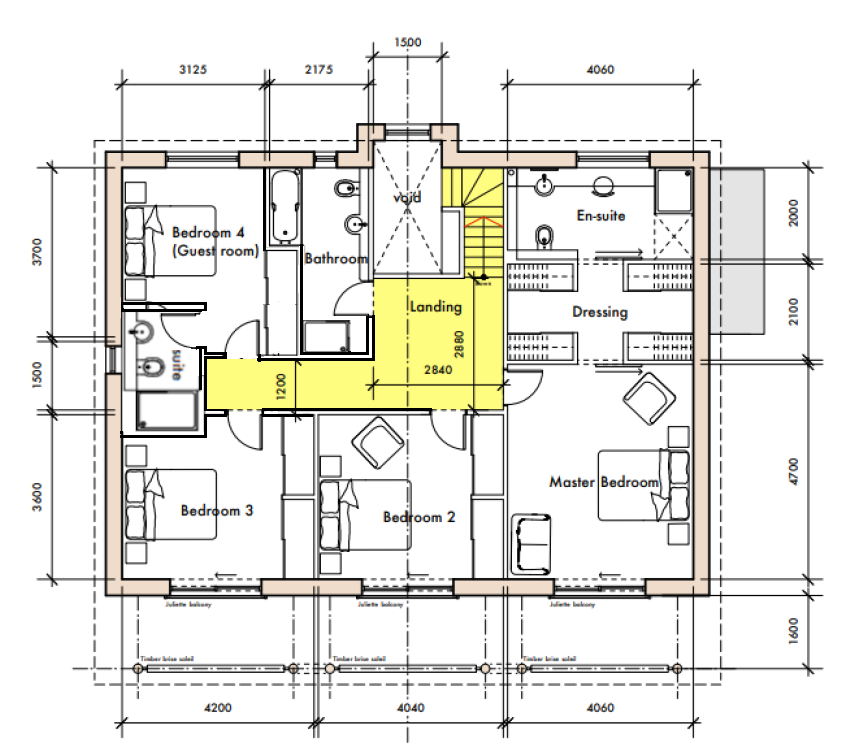
Mike Posted yesterday at 13:29 Posted yesterday at 13:29 Overall it looks fairly well thought out. A few of minor points: Ditch the sliding doors off the Master Bedroom for something quieter. The wardrobe space in Bedroom 4 is not very generous. Ensure that the partition between Bedroom 4 and the adjacent bathroom sound-proofed Ensure that the partition between Bedroom 3 and the adjacent en-suite is sound-proofed Where will the SVP serving that en-suite run downstairs? For safety, move the hob away from the corner of the kitchen island Do you really need 3 sink bowls in the kitchen (and 2 more in the utility)? 1
Gballam Posted yesterday at 13:52 Author Posted yesterday at 13:52 Thanks v much for your reply. Noted re: soundproofing and hadn't thought about the noise of the pocket doors. Yes - agree with the sink/hob on the island, not sure why the architect drew it like that. It will just be a centralised hob on the island. Will have to think about SVP route. Thanks again for your thoughts
Bramco Posted yesterday at 14:02 Posted yesterday at 14:02 Pocket doors are a great solution for where you have them. We have them between our bedrooms and dressing rooms - they aren't that noisy. You soon learn to open them quietly. 1
Bonner Posted yesterday at 15:20 Posted yesterday at 15:20 Overall really nice design. I would think very carefully about having split level ground floor. Also check there is sufficient space for a comfortable staircase, looks a bit tight.
ProDave Posted yesterday at 15:42 Posted yesterday at 15:42 2 hours ago, Mike said: Ensure that the partition between Bedroom 4 and the adjacent bathroom sound-proofed Ensure that the partition between Bedroom 3 and the adjacent en-suite is sound-proofed Bedroom 4 and bathroom is not so much of an issue. The WC is shown on the wall adjoining the void and it is the WC flushing and re filling that is the biggest issue. So with that in mind, re think bed 4's en-suite layout so the WC is NOT hung on the wall adjoining Bed 3 The fact we are discussing such details shows the basic design is pretty good. 1
Gballam Posted yesterday at 15:53 Author Posted yesterday at 15:53 31 minutes ago, Bonner said: Overall really nice design. I would think very carefully about having split level ground floor. Also check there is sufficient space for a comfortable staircase, looks a bit tight. Hi Bonner, Thanks for your reply. Why in particular would you caution against the split level? Our site slopes and it will allow for flush entrance at the front and back. Georgina
Gballam Posted yesterday at 15:54 Author Posted yesterday at 15:54 11 minutes ago, ProDave said: Bedroom 4 and bathroom is not so much of an issue. The WC is shown on the wall adjoining the void and it is the WC flushing and re filling that is the biggest issue. So with that in mind, re think bed 4's en-suite layout so the WC is NOT hung on the wall adjoining Bed 3 The fact we are discussing such details shows the basic design is pretty good. Thank you - noted. That’s encouraging
Bonner Posted yesterday at 16:00 Posted yesterday at 16:00 2 minutes ago, Gballam said: Hi Bonner, Thanks for your reply. Why in particular would you caution against the split level? Our site slopes and it will allow for flush entrance at the front and back. Georgina Just access and mobility around the house which is arguably more important than level entrance ways. I actually like the interest that split levels lend to an interior but it is not practical for everyone. 1
Mike Posted yesterday at 16:49 Posted yesterday at 16:49 53 minutes ago, Gballam said: Why in particular would you caution against the split level? Our site slopes and it will allow for flush entrance at the front and back It's true that it can impede mobility on the ground floor but, having lived in a split-level house, it was an interesting & worthwhile feature. 1
Gballam Posted yesterday at 16:53 Author Posted yesterday at 16:53 Yes we also thought a nice feature to have higher ceiling height in the main living areas. We hope to be able to afford a warm roof and have most of the upstairs vaulted - with the exception of the dressing and the master en-suite which we plan to have flat ceilings for storage above. We want to try and make what is essentially a box and a lid a bit more interesting internally!
Mike Posted yesterday at 16:54 Posted yesterday at 16:54 1 hour ago, ProDave said: Bedroom 4 and bathroom is not so much of an issue. Having slept in a bedroom with a bath and over-bath shower against the wall (by coincidence in that split-level house), it was a problem for me. 1
Kelvin Posted yesterday at 17:13 Posted yesterday at 17:13 Nice layout. I realise it’s early in the process. I wouldn’t have your hob at the window end of the island. Have it beside where the ovens are either in the end or in the middle to give you working space either side.
Gballam Posted yesterday at 17:45 Author Posted yesterday at 17:45 30 minutes ago, Kelvin said: Nice layout. I realise it’s early in the process. I wouldn’t have your hob at the window end of the island. Have it beside where the ovens are either in the end or in the middle to give you working space either side. Thank you. It will be in the middle, architect didn’t update that part
JamesP Posted yesterday at 18:13 Posted yesterday at 18:13 Just had a quick glance at your drawings, looks great. I do like the split level, we have a sloping site and all 4 entrance /exits are flush with the outside. Any doors to separate the hallway from the main living area? Noise might be an issue upstairs. We have 2 pocket doors (Not noisy) and are in use most evenings if others are in the bedrooms. I would spend time and money on soundproofing between bedrooms and bathrooms. 1
ProDave Posted yesterday at 18:41 Posted yesterday at 18:41 1 hour ago, Mike said: Having slept in a bedroom with a bath and over-bath shower against the wall (by coincidence in that split-level house), it was a problem for me. True, but that is probably a morning problem. Someone flushing a loo and the cistern re filling on a wall joined to yours can happen any time of the night, perhaps more than once in the night. so i would avoid at all costs a WC and it's cistern on an adjoining wall. If you can avoid a shower on an adjoining wall then do so, in this case the pipework and shower head (water flowing noise) could be on the external wall not the adjoining bedroom wall if you swap bath and shower positions. 1
Kelvin Posted yesterday at 19:17 Posted yesterday at 19:17 Our downstairs loo is on an adjoining wall with the study (which might eventually become a bedroom) I built a bulkhead to fit the frame for the loo and to run the waste pipe. I made it slightly deeper than I needed (had plenty of width in the bathroom) and separated it from the wall. The wall is insulated like an exterior wall. I also added some acoustic foam mainly because I happened to have it. You can’t hear anything in the study so while it’s best avoided you can mitigate it. The mistake I made was with the upstairs shower and the floor beneath it it. It sounds like it’s raining inside the hallway below. 1
Gus Potter Posted yesterday at 19:27 Posted yesterday at 19:27 (edited) 6 hours ago, Gballam said: We are trying to create a thermally-efficient, cost effective family home and the comments here are always helpful. Please let me know thought on this design. Good for you getting to this stage, exciting. SE wise it does not look too complicated and costly. You'll need a stiff floor over the open plan area at the rear. Architecturally inside, this is a nuance. I can see what you are trying to achieve with the void over the front door which also lights the upper hall. I can also see how you are intending to be able to look all the way through the house from the moment you come in the front door. The potential pitfall here is that you have a small area of narrow corridor off the TV/ snug.. cloaks. Sometimes I design stuff like this to create a perspective view as you come in the front door. Here what you do is to widen the corridor as it progresses into the building. For this I would start with a sightline of about 5 -7 degrees, for large hallways with depth and volume the starting point is about 12 degrees. The intention is to trick the eye into thinking the corridor is shorter and to invite you further into the building. A tunnel effect is not inviting. Try experimenting with this at home just now. Mark out your corridor length and width and have a pretend walk through it. I would try first widening the hall at the TV / cloacks area by stepping the doors back, see how that feels. Ask your Architect about this trick. Later on if you start asking about SE design then it would help lots if you could put some gridlines on the drawings as it's much easier to refer to and line up the different floors for easy visualisation of the load paths. To this day I still can't fathom why Architects don't do this! Edited yesterday at 19:29 by Gus Potter 1 1
Mike Posted yesterday at 20:01 Posted yesterday at 20:01 (edited) Here's an alternative for the North East corner that doubles the wardrobe space in Bed 4, and removes the WC from the Bed 3 wall, albeit at the expense of bedroom width in bedrooms 3 & 4. You could probably rework the en-suite & corridor end to avoid cutting space from Bed 3. But everything's a compromise. There's space at the end of the corridor for a shallow storage cupboard. Edited yesterday at 20:03 by Mike 1 1
ETC Posted yesterday at 21:11 Posted yesterday at 21:11 It’s a bit of a beast to be honest. I’m not that keen on the massing or the elevations especially the front door and the window above the door. Sorry but not my cup of tea. 1
Gballam Posted 23 hours ago Author Posted 23 hours ago 2 hours ago, Gus Potter said: Good for you getting to this stage, exciting. SE wise it does not look too complicated and costly. You'll need a stiff floor over the open plan area at the rear. Architecturally inside, this is a nuance. I can see what you are trying to achieve with the void over the front door which also lights the upper hall. I can also see how you are intending to be able to look all the way through the house from the moment you come in the front door. The potential pitfall here is that you have a small area of narrow corridor off the TV/ snug.. cloaks. Sometimes I design stuff like this to create a perspective view as you come in the front door. Here what you do is to widen the corridor as it progresses into the building. For this I would start with a sightline of about 5 -7 degrees, for large hallways with depth and volume the starting point is about 12 degrees. The intention is to trick the eye into thinking the corridor is shorter and to invite you further into the building. A tunnel effect is not inviting. Try experimenting with this at home just now. Mark out your corridor length and width and have a pretend walk through it. I would try first widening the hall at the TV / cloacks area by stepping the doors back, see how that feels. Ask your Architect about this trick. Later on if you start asking about SE design then it would help lots if you could put some gridlines on the drawings as it's much easier to refer to and line up the different floors for easy visualisation of the load paths. To this day I still can't fathom why Architects don't do this! Thank you - this is really helpful. I hadn’t thought about the tunnel effect and it would be an easy improvement to move the snug/cloaks walls back a bit
Gballam Posted 23 hours ago Author Posted 23 hours ago 2 hours ago, Mike said: Here's an alternative for the North East corner that doubles the wardrobe space in Bed 4, and removes the WC from the Bed 3 wall, albeit at the expense of bedroom width in bedrooms 3 & 4. You could probably rework the en-suite & corridor end to avoid cutting space from Bed 3. But everything's a compromise. There's space at the end of the corridor for a shallow storage cupboard. Thank you so much for taking the time to draw this out, we will mull over this change
Gballam Posted 14 hours ago Author Posted 14 hours ago 12 hours ago, JamesP said: Just had a quick glance at your drawings, looks great. I do like the split level, we have a sloping site and all 4 entrance /exits are flush with the outside. Any doors to separate the hallway from the main living area? Noise might be an issue upstairs. We have 2 pocket doors (Not noisy) and are in use most evenings if others are in the bedrooms. I would spend time and money on soundproofing between bedrooms and bathrooms. Thank you - v helpful!
-rick- Posted 10 hours ago Posted 10 hours ago Nice design. Has many elements that I've been thinking about for my future project (if it happens) so taken some ideas from it. One hopefully very minor thing. I think there might be a mistake in the drawing that you might want to look into. I see on the drawing that space for downpipes has been allowed from the upper bathrooms except for the guest bedroom. There is also a downpipe leading to nowhere on the floor above in the corner of the kitchen. I'm guessing the layout was flipped at some point and this wasn't moved? Depending on your construction this might be a very minor detail or a real pain to fix if not addressed before foundations are done. The space between kitchen island and dining table seems very large. Are you planning on some form of room divider there? 1
Gballam Posted 8 hours ago Author Posted 8 hours ago @-rick- Very observant with the flipped design - that’s exactly what happened and the down pipe has been left on by accident. Need to look into downpipes clearly! Still very early to fix. Pleased there’s things here to inspire your design The dining table isn’t drawn in the right place - it will be moved towards the kitchen slightly and therefore there will be a bit of circulation space on entering the main room. We will have a behind the sofa sideboard to create a bit of room divide/conceal the back of the sofa
Recommended Posts
Create an account or sign in to comment
You need to be a member in order to leave a comment
Create an account
Sign up for a new account in our community. It's easy!
Register a new accountSign in
Already have an account? Sign in here.
Sign In Now