G and J Posted March 2 Posted March 2 I need help with my drains.... We have a strong view of where our finished floor level should be, which is of course bad news. This is driven by our need for our new pad to look right in the row and not cause offence as we want to get on with our neighbours, cos we try and be nice peeps. But, the sewer pipe at the edge of our plot is not deep. I had hoped for a 100mm screed and 200mm of PIR as underfloor insulation, but that now looks highly unlikely. So we've ended up with the below as my best guess. I'd be grateful for comments and opinions and ideas - is this design OK? Where can it be improved?
JohnMo Posted March 2 Posted March 2 You could make the low point as deep as you want, then pump up on the main sewage pipe. Think they just run on level control once it gets to a given level the ball cock switches on pump and moves it forward.
Temp Posted March 2 Posted March 2 Perhaps consider moving the stack in the utility room to the corner of the cloakroom next to the WC. Then run 50mm/2" around the utility room above floor level. With upstands for washing machine etc.
Russell griffiths Posted March 2 Posted March 2 What’s the 150 pipe for. apart from that I can’t see a problem.
G and J Posted March 2 Author Posted March 2 19 minutes ago, JohnMo said: You could make the low point as deep as you want, then pump up on the main sewage pipe. Think they just run on level control once it gets to a given level the ball cock switches on pump and moves it forward. Fair point, but I was hoping to avoid a pump. I like gravity, it doesn’t blow a fuse or need maintenance. 1
G and J Posted March 2 Author Posted March 2 20 minutes ago, Temp said: Perhaps consider moving the stack in the utility room to the corner of the cloakroom next to the WC. Then run 50mm/2" around the utility room above floor level. With upstands for washing machine etc. Interesting idea, and that shows the power of the lateral buildhub mind. It would help the run length a bit, and probably increase the invert level on the 100mm pipe by about 40mm but unless it dog legged quite a lot between the joists it would impede the room upstairs. I guess the question in my mind is can I have me pipes that high in the slab?
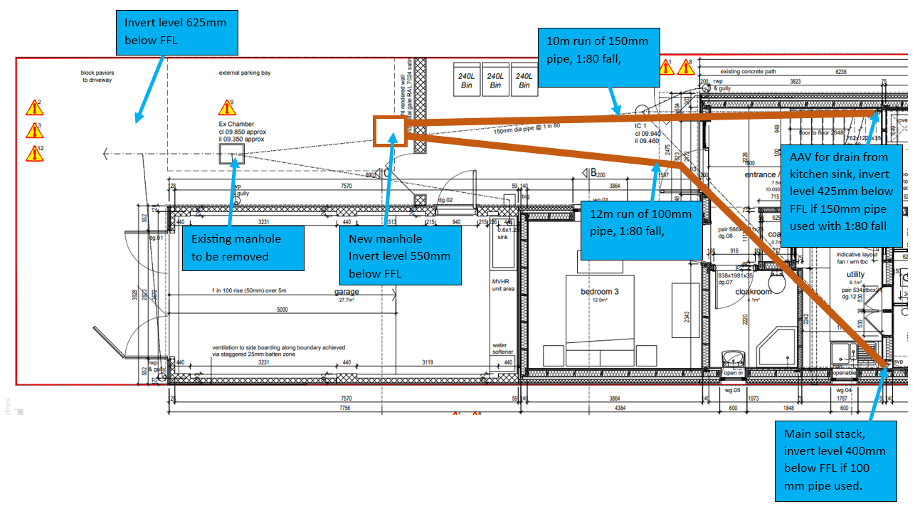
G and J Posted March 2 Author Posted March 2 21 minutes ago, Russell griffiths said: What’s the 150 pipe for. apart from that I can’t see a problem. The 150mm pipe run does not have a loo feeding it so if it was 100mm pipe it would have to have a fall of less than 1:40. That would really muck the levels up.
JohnMo Posted March 2 Posted March 2 Also notice you have a slab, insulation and then screed. Could that be changed to have the slab above the insulation? So no screed? UFH pipes in slab?
G and J Posted March 2 Author Posted March 2 1 hour ago, JohnMo said: Also notice you have a slab, insulation and then screed. Could that be changed to have the slab above the insulation? So no screed? UFH pipes in slab? We had intended to have a beam and block floor. If we went for a slab above insulation what would the build up be? We are having strip foundations. It’s not sensible to have a raft due to the slope of the site, we’d need a stepped raft which would not work easily.
BotusBuild Posted March 2 Posted March 2 2 hours ago, G and J said: The 150mm pipe run does not have a loo feeding it so if it was 100mm pipe it would have to have a fall of less than 1:40. That would really muck the levels up. So, no solids to move? If so, then a 100mm pipe could give you a better fall than a 150mm pipe if I have visualised this correctly
Russell griffiths Posted March 2 Posted March 2 1 hour ago, BotusBuild said: So, no solids to move? If so, then a 100mm pipe could give you a better fall than a 150mm pipe if I have visualised this correctly That’s what I thought, nothing going down it apart from water, so 1-80 would work fine.
G and J Posted March 2 Author Posted March 2 (edited) 1 hour ago, Russell griffiths said: That’s what I thought, nothing going down it apart from water, so 1-80 would work fine. The regs seem to say otherwise. I think it’s the whoosh of the flush that allows less of a fall. In fact you want less of a fall to ensure that the liquids don’t leave the solids behind. A 10m run of 100mm pipe that doesn’t carry toilet waste must have a fall of 1:40 = 250mm The same run in 150mm pipe can have a much lower fall (say 1:Ip124ay or 1:100) and thus help when things are tight. Edited March 2 by G and J Typos due to fat finger syndrome!
Nickfromwales Posted March 2 Posted March 2 5 hours ago, G and J said: We had intended to have a beam and block floor. If we went for a slab above insulation what would the build up be? We are having strip foundations. It’s not sensible to have a raft due to the slope of the site, we’d need a stepped raft which would not work easily. I worked on an ICF foundation that was strip founds and infill slabs, ~120-130mm concrete with UFH and mesh over 100mm of EPS and 100mm of PIR (200mm total insulation thickness). Worked a charm, and would save you the costs and mechanical handling of the B&B. I just don't get the logic of slab (or screed) after slab tbh.
G and J Posted March 2 Author Posted March 2 1 minute ago, Nickfromwales said: I worked on an ICF foundation that was strip founds and infill slabs, ~120-130mm concrete with UFH and mesh over 100mm of EPS and 100mm of PIR (200mm total insulation thickness). Worked a charm, and would save you the costs and mechanical handling of the B&B. I just don't get the logic of slab (or screed) after slab tbh. In this case I think it’s a case of me not knowing what I don’t know. Like big time. In the above example were all the internal walls were supported by foundations? Do the concrete/UFH slabs (is that the correct term?) all have a PIR upstand round them? If so is it a smaller one for internal walls for expansion vs a larger one on external walks to reduce cold bridging? 1
Nickfromwales Posted March 2 Posted March 2 1 minute ago, G and J said: In this case I think it’s a case of me not knowing what I don’t know. Like big time. Relax, I was once as smart as Forrest Gump. We all gotta start with the smallest of steps. You know to ask, which is HUGE 2 minutes ago, G and J said: In the above example were all the internal walls were supported by foundations? Yup, peripheral and intermediate strips, to take loads down to founds where required. 3 minutes ago, G and J said: Do the concrete/UFH slabs (is that the correct term?) all have a PIR upstand round them? If so is it a smaller one for internal walls for expansion vs a larger one on external walks to reduce cold bridging? They're called constructional slabs iirc. Yes to the PIR skirt aka upstand, as a thermal break. Also, there was a 10mm thick expansion skirting to accept movement from the heated slab (although I think that was just to tick a box afaic). Same size skirt all round as all rising walls from founds will be as cold as Ice Cube when visiting the Nordics in his budgie smugglers.
G and J Posted March 2 Author Posted March 2 I think I’m getting the idea. So that would place the base of the insulation just below the top of my soil pipes. Is that ok? Would the DPM be below the insulation (to avoid soggy PIR) and simply rise over the pipes?
saveasteading Posted March 2 Posted March 2 I wtote this hours ago and forgot to send. May be superseded but haven't time to check.... I'm sorry but I might be misunderstanding something. I like gravity too. Why use 150mm pipe? 100 is plenty, in fact will run better. Start at the street connection. Work from there using 100mm at minimum grade. See where it ends up. If available then you can steepen the slopes. Be sure to use manhole bases that do not lose any height at the junctions. The pipes don't need to be 40mm or 65mm below the eps: they can be in it even.
saveasteading Posted March 3 Posted March 3 So the b and b floor is really the constraint on levels. So I revise my advice. 100mm pipe throughout. Use the level where the pipe passes out of the house just touching the floor as your datum. Run ig from there to the house connections at 1: 80, and from there to the sewer at whatever gradient is available. If this results in slight intrusion into the screed then either increase the insulation thickness or let it intrude into the screed. Or take the drains outside by the shortest route, but that increases drain runs and cost.
G and J Posted March 3 Author Posted March 3 8 hours ago, saveasteading said: I wtote this hours ago and forgot to send. May be superseded but haven't time to check.... I'm sorry but I might be misunderstanding something. I like gravity too. Why use 150mm pipe? 100 is plenty, in fact will run better. Start at the street connection. Work from there using 100mm at minimum grade. See where it ends up. If available then you can steepen the slopes. Be sure to use manhole bases that do not lose any height at the junctions. The pipes don't need to be 40mm or 65mm below the eps: they can be in it even. Totally agree re the process of working back from the road - here’s my thinking in case I’ve made a mistake…. The existing manhole on site loses ~100mm, so that’s going. I set my datum as the target finished floor level. Against that the invert level near the edge of site is 625mm lower. If when we dig all the way to the edge of site it’s lower still that would be a bonus, but the pipe there appears to be at 1:80 already. Guessing a location for a manhole for the join of the two branches places it just west of our short wall. That’s 6m along and at 1:80 that loses 75mm of invert. The southern branch, from the base of the soil stack, carries WC waste so can be at 1:80 in 100mm pipe. There's 12m of that so at 1:80 that loses another 150mm, giving 400mm max invert level against FFL at the bottom of the soil stack. The other branch does not carry WC waste, just sink and overflows. Therefore min fall in 100mm pipe is 1:40. For a 10m run that means a fall of 250mm. With a 150mm pipe even without WC waste a much shallower fall is allowed, up (or is it down?) to 1:120 I believe, but using a sensible 1:80 that gives a drop of 125mm so that’s better even allowing for the pipe being 50mm bigger. Thus Mac invert level against FFL the bottom of the AAV stub is 425mm, but it’s a bigger pipe hence the top being closer to FFL. I’ve been over and over that and if I’ve hit that wrong and it’s not as bad as that I’d be annoyed with myself but chuffed to bits. 1
G and J Posted March 3 Author Posted March 3 2 minutes ago, saveasteading said: So the b and b floor is really the constraint on levels. So I revise my advice. 100mm pipe throughout. Use the level where the pipe passes out of the house just touching the floor as your datum. Run ig from there to the house connections at 1: 80, and from there to the sewer at whatever gradient is available. If this results in slight intrusion into the screed then either increase the insulation thickness or let it intrude into the screed. Or take the drains outside by the shortest route, but that increases drain runs and cost. Took me so long to write my last post I missed this one lol…. Re the BnB yes, it simply doesn’t work with our drain levels. The only alternative I knew about was a concrete base, then insulation, then screed. However, I now am starting to understand a constructional slab (I think it’s called). As soon as I thought about pipes in insulation I had a wobble. The insulation goes above a DPM and if a pipe leaks even the tiniest amount one has a pooey underfloor pond trapped in a DPM tray. Not a pleasant thought. But where does (do) the DPM(s) go in a constructional slab? Is the build up…. Crushed, compacted stone, sand blinding, DPM, EPS (with added pipework), Vapour barrier Slab with UFH. Or is it…. Crushed, compacted stone, sand blinding, (is this needed if there’s no DPM there to protect?) EPS (with added pipework), DPM (which also acts as a vapour barrier), Slab with UFH.
saveasteading Posted March 3 Posted March 3 I'm going out so will review later. Thats a very simplistic table. I think I'd put the 100mm in at 1:80 and explain to the bco why that isn't a problem, because it isn't. What's going to get stuck?
Roger440 Posted March 3 Posted March 3 11 hours ago, Nickfromwales said: I just don't get the logic of slab (or screed) after slab tbh. +1. Never made any sense to me either. Extra build up depth, extra costs, for no gain that i can see. Beyond a faster responding UFH? Still seems popular though.
G and J Posted March 3 Author Posted March 3 1 minute ago, Roger440 said: +1. Never made any sense to me either. Extra build up depth, extra costs, for no gain that i can see. Beyond a faster responding UFH? Still seems popular though. I actively want a slower response in the sense that I want the screed/slab to hold enough heat to enable reasonably consistent internal temps using cheap periods of a ToU tariff.
Nickfromwales Posted March 3 Posted March 3 2 minutes ago, G and J said: I actively want a slower response in the sense that I want the screed/slab to hold enough heat to enable reasonably consistent internal temps using cheap periods of a ToU tariff. Then you’ve come to the right place, lol.
Roger440 Posted March 3 Posted March 3 1 minute ago, G and J said: I actively want a slower response in the sense that I want the screed/slab to hold enough heat to enable reasonably consistent internal temps using cheap periods of a ToU tariff. In which case, given your other challenges seems like a no brainer to me.
Recommended Posts
Create an account or sign in to comment
You need to be a member in order to leave a comment
Create an account
Sign up for a new account in our community. It's easy!
Register a new accountSign in
Already have an account? Sign in here.
Sign In Now