Jump to content

Recommended Posts

Posted

Hello Build-Hubbers

 

As some of you know I'm getting pretty close to starting my 200mm round log cabin now, which is built to mobile regulations and in two sections for transportation. Each section will be about 15T.

 

The overall foot print is 17.6m x 6.1m

 

If I get the green light from planning I could be starting the foundations in August and I want to finalise how I'm doing the foundations. It's out of scope for building control so I pretty much have free reign to do as I please. 

 

The ground on my site is solid granite and I don't want to go overkill with the foundation design. At first I was going to have the timber ring beam delivered at the same time as the round logs, so the below system appealed to me as I wouldn't have had to get the location bang on as it all has adjustment.6.EasyPad-Installation-Guide.thumb.jpg.d46f30b3239d298738b6d31cd72f32b7.jpg

However I'm now constructing the timber ring beam in advance, which will be 4 number 45mm x 195mm, glued, screwed and bolted, potentially ply lined box beams - I'm still awaiting designs from my SE. So I can take my time and get it all correct. What would be a typical design for a building of this size?

 

I was thinking concrete piers made out of 300mm diameter pipe, tied into a base of say 200 x 500 x 500 cast straight on top of the rock. The majority of piers are only 400m high. Some are as high as 1.4m and there will also be a 40m2 stilted decking area. I'm also considering having some T brackets, in-Line brackets, corner and stilt brackets fabricated that cab be cast into the tubing using a fixing socket and offer height adjustment - I'm good friends with the owner of a fixing anchor factory over in China and he has offered to make a system which I can roll out on future projects so it will cost me very little for these brackets and it's very reassuring to think I have say 50mm - 100mm of adjustment. Also the timber will not be directly sat on concrete so no wicking. I have to say the above foundation which uses a precast concrete pad and allows full axis realignment is great - They can take a load of 5T each, not sure I trust them for the stilted areas though, I'm sure they are OK for decking but I have doubts for the log cabin main structure. They are only 400 x 400 and 180 high so extremely efficient. Should I attempt something similar? 

 

Precast Pads In Use:

thumbnail_IMG_8093.jpg.fec7cf0b9f99153b460292ee62093cfb.jpg

 

My pier plan:

 

Foundations.thumb.png.5612e8fec97638d920cbe6247dc19167.png 

  • Like 1
Posted

Looks fantastic 

and a really interesting read 

Keep the posts coming 

Posted

I welded up some steel to make cabin footings and cast them in concrete. See pics, but this was a flat site and not on rock. 

On Rock I'd be tempted to use big tyres filled with concrete as the pads and cast in appropriate steel to suit. 

 

 

DSC_0546-01.jpeg

DSC_0550.JPG

Posted

This is the foundation system a neighbour used.

1067852490_peterspiles.thumb.jpg.7f49d4d9700ced7ba3e237536e37e181.jpg

 

Because of poor ground conditions, each pillar has a 1 metres square of concrete underground, then a 300mm diameter concrete pier cast inside a bit of plastic drain pipe.

 

The wall at the near end is a retaining wall partly to hold back the sloping ground, and partly for one end of the building to rest on to try and ensure it stsays put, i.e to resist any temptation for the pillars to start leaning over.

Posted
1 hour ago, JSHarris said:

Looks very similar to the foundation blocks pioneered by Walter Segal.  @Ed Davies has used this method for the foundations of his self-build, I believe.

 

Yep. Some relevant blog posts:

 

https://edavies.me.uk/2015/03/2015-6/

https://edavies.me.uk/2015/03/bolted-to-scotland/

https://edavies.me.uk/2016/03/first-frame/

 

One difference, though, is that Walter Segal (and CAT and I) put up the whole frame then clad it whereas @iSelfBuild seems to be more building a platform then going up from there.

Posted (edited)

Thanks everyone for your input!

 

I profiled the logs and I can slim the ring beam down to 3 no 45 x 195 C24 - glued and bolted lined with 18mm marine plywood.

 

In my old line of work we sell a 42mm internally threaded socket with a 130 x 130 8mm flat plate - this is rated at lifting 8 tonnes so plenty robust enough! This will be welded to various corner, inline, cross plates etc. It then is connected to the pads with 42mm threaded bar and a fixing socket. The pads have a widest radius of 400mm and slim down to 130mm at the top. This follows a 45* blow out force from the top.

 

1944111652_foundationpad.png.e149d986ccfd5cfafa130cec0e2badfb.png

 

For the sloped sections I will set the pads on piers which are cast from 300mm pipe and faced with stone. With trellis between the piers I hope it will look less imposing! The cabin will be elevated by about 1.4m in one corner.

 

Piers.png.2e9de3fa6fead645645b8ec07f235925.png

 

Just not sure on the appropriate footing that will tie in the piers where it is elevated. My main concern is the potential for them to topple over!!!

 

So I think I will have to tie them in to a strip foundation.

Edited by iSelfBuild
  • 4 years later...
Posted

Hi, came across this thread as i'm currently weighing up foundation options for a 30m2 cabin/hut.
Choosing between precast concrete pads, augered concrete piers or wondering whether I can go for compacted type1 then concrete foundation blocks to elevate off ground as the ground is already well compacted (had a cabin on the site for about 30 years before it got demolished).
What method did you end up going for in the end?

Cheers

Posted

I did a pier building. 

 

Dug out some circles about 600mm diameter. Levelled the bottom with some gravel. Dropped in a used tyre as formwork, filled with stiff concrete, pushed in a 250mm corrugated pipe into he middle as a pier form cut off to the correct height. Shoved in an M24 rod in the middle. A couple of nuts and a big washer and horizontal timbers and a dead level foundation was complete. 

 

I wanted to avoid digging too much. Stupid I know - I have a digger. I wanted to avoid mixing too much concrete. Stupid I know - I have a tractor cement mixer. 

 

I wanted to have a suspended timber floor as it's nice and bouncy and pliant under foot. Check.

 

I wanted to try something different. Check.

 

In hindsight I should have just poured a concrete ring beam or strip foundations or an insulated raft and built up on them. 

 

The raised building invited some form of velociraptor or gruffalo take up residence underneath. I've since decided to block off most of the crawl space perimeter with blocks. It also ended up very high off the ground. Maybe 500m or so so will require steps. 

 

 

  • 1 year later...
Posted
On 16/07/2019 at 19:46, Miek said:

I welded up some steel to make cabin footings and cast them in concrete. See pics, but this was a flat site and not on rock. 

On Rock I'd be tempted to use big tyres filled with concrete as the pads and cast in appropriate steel to suit. 

 

 

DSC_0546-01.jpeg

DSC_0550.JPG

 

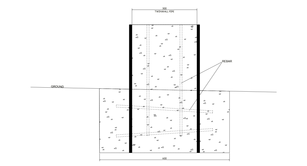
Do you think a similar idea using a 300mm plastic twinwall pipe would work. Say 600mm square hole with the pipe in the center, 2 or 3 lengths of rebar through the pipe and fill both the hole and pipe with concrete?  

 

TWINWALL.png

Create an account or sign in to comment

You need to be a member in order to leave a comment

Create an account

Sign up for a new account in our community. It's easy!

Register a new account

Sign in

Already have an account? Sign in here.

Sign In Now
×
×
  • Create New...