Jump to content

Recommended Posts

Posted
23 minutes ago, Oz07 said:

Even with that garage and bedroom above included in 11m?

no basic house is 11M long plus garage.

Posted
14 minutes ago, -rick- said:

This is a good goal and I think that is an area that could be improved in the original design. Especially upstairs.

 

If accessibility is a concern then the squarer bathroom is better than a long thin one.

One of our unusual ideas was the combined downstairs WC and utility room.  Quite okay by building regs but not to everyones taste having the washing machine and EX in the same room.

Posted

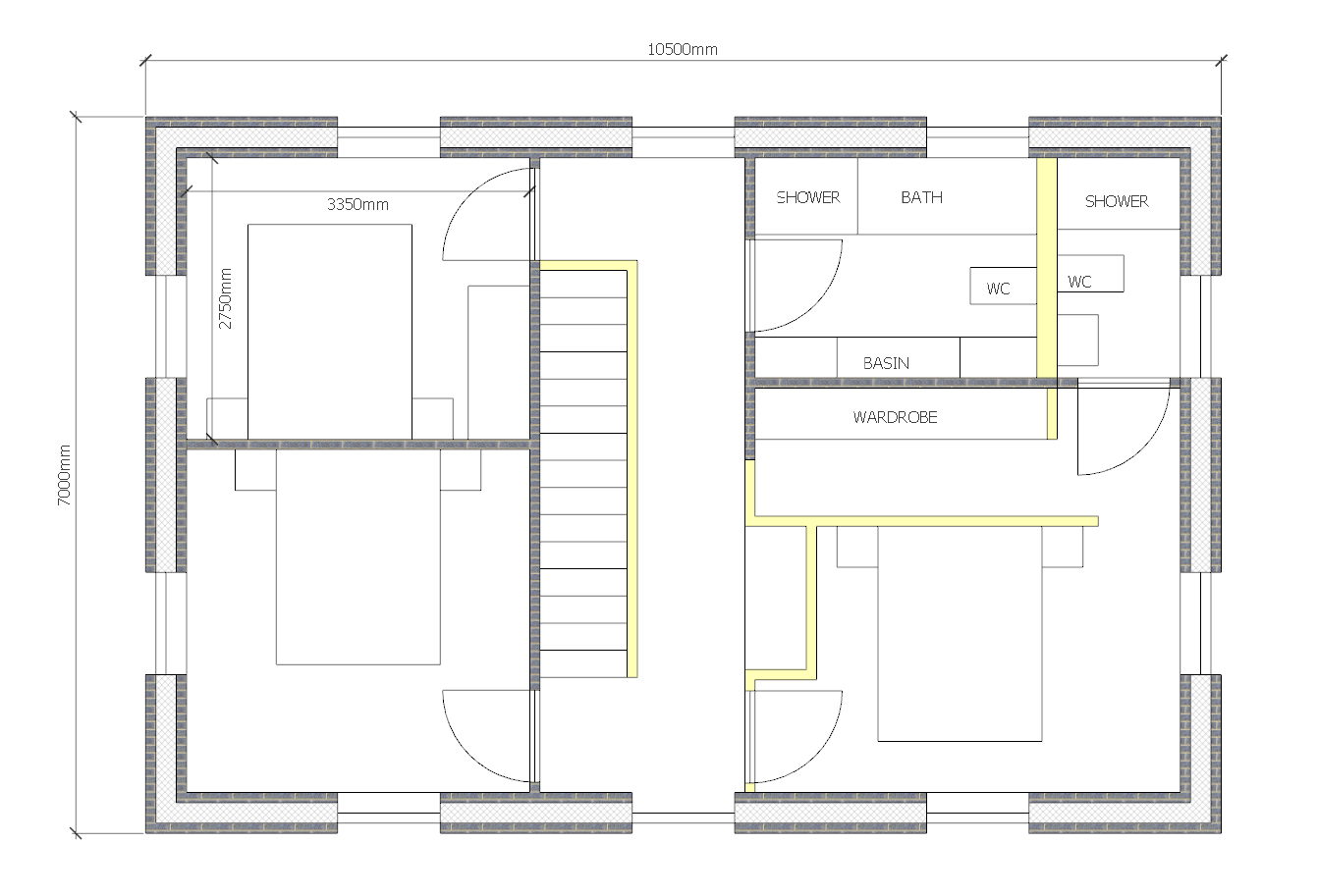
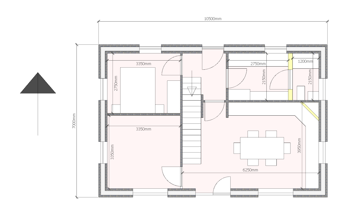
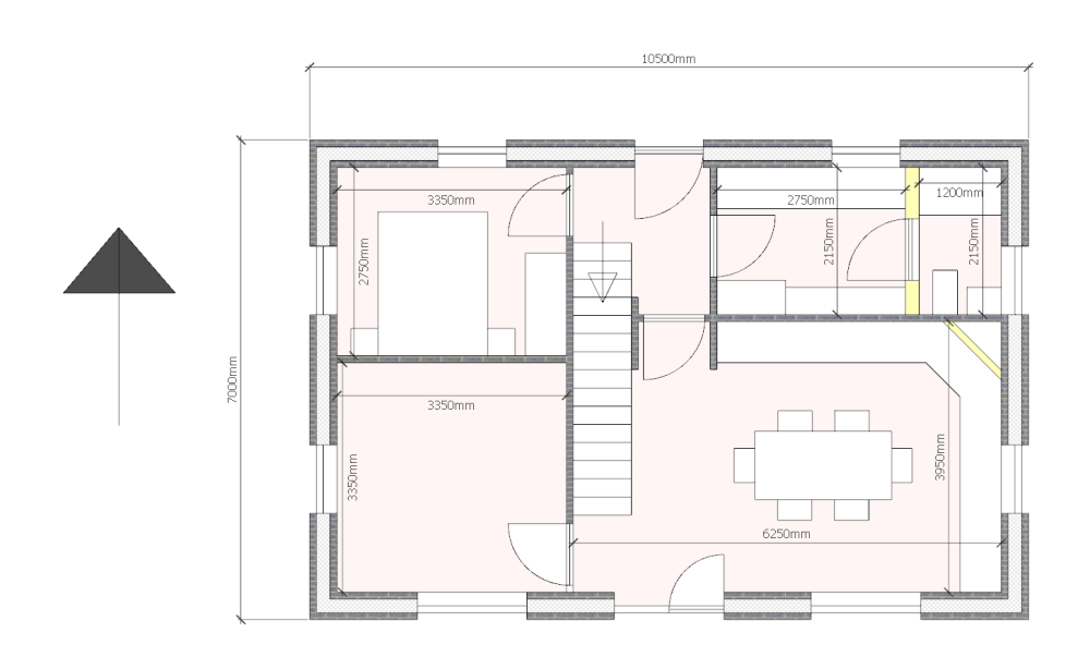
image.thumb.png.e64e55aae0516c8fb172efa6e01c8076.png

 

image.thumb.png.5b95f5900c11be098ce98cf4bc0c654a.png

 

image.thumb.png.47baf0f01fef67db707853501088152c.png

 

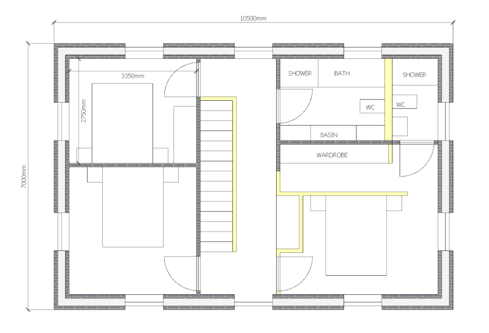
A shrunken version of when we built. I really really hammered costs as it was our 3rd set of planning and I was trying to save money. 

 

400mm cavity wall for good U values at minimum cost. Some plans have walls 200mm wide total which might bite you when you come to a detailed design. Similarly some of the stairs would be very steep. I would allow a run to rise ratio of at least 10:7. With a 185 rise you'd need a 265 run. and if you have 2650 ceilings you'd need nearly 4m of stairs run. Ours is 191/250 rise to run and it's too steep. I can't make peace with stairs that aren't straight as they waste so much spaces floors. 

 

The plumbing is concentrated in one corner. All the waste pipes can run through the stud between the utility and the downstairs WC. 

 

The upstairs blockwork matches downstairs. Good for costs and noise.  The whole thing can be built with standards timber joists even with MVHR. Just drop the ceiling in the utility for services. 

 

A utility cloaks off the front door gets use all the time and a "walk through" design is far far better than one with corners as they always get blocked with crap. Sensible window spans mean you can use all off the shelf concrete lintels. £1000 would do the house. 

 

Every bedroom has cross ventilation and windows on two aspects which make them feel bigger than they are although this may not be possible in your situation. 

 

With a bit of DIY I would think you'd get  the above built for £250k. 

 

 

  • Like 1
Posted
54 minutes ago, ProDave said:

Requirements vary

 

Ours is 1.5 storey, you would not be allowed anything else here.

Its funny what different folks want. All our houses upto now have had minimal wasted space. The one we're in atm is the same with gf cloaks under stairs and ensuite/ dressing area above the stairwell. I want a slightly more open space this time. I don't want to feel like every nook and cranny is accounted for. I'd much rather see a dresser under the stairs in this layout and double glazed doors into the kitchen. In the olden days you'd have probably had "the" phone here! Hall will feel less cramped even though its wasted space. Likewise upstairs I'd like a window in the middle at the front with a bookcase, chair or maybe even ironing board 🤣 below the window. 

 

As for planners they do your nut in. Imo all the best looking places were built before the planning system ever existed. Although I think some of the blame lies with building regs aswell now. Fancy saying to someone you can only have 1.5 storey in your neck of the woods. What does it achieve? You've still got first floor windows. Your housing density is much less up there anyway what issue is it to build full 2 storey? Blood sucking bureaucrats trying to justify their job. There are some great looking 1.5 storey places but a blanket rule of no 2 storey is a joke. 

Posted

@Iceverge thanks for those. Unfortunately living room too small for us. Kitchen on the front not what we want and think its a hard no with the stairs open onto the kitchen. 

Think stairs in current house ok at 42 deg and we were in bungalow previously! I think there are 13 risers in current house. Agree with the high ceilings, last place had 2550 and felt a lot better. I will have to see tallest eaves height i can get away with as I'd want eco trusses and decent ceilings if poss. I got AI to do the sums for me the other week I just cannot see 200mm cavity ever being worth it. I feel the same way about 3g tbh. When I looked at the sums the payback period is longer than the window will last although someone the other day was saying the costs between 2 and 3g wasn't as big as id expected. 

Posted (edited)
1 minute ago, Oz07 said:

@Iceverge thanks for those. Unfortunately living room too small for us. Kitchen on the front not what we want and think its a hard no with the stairs open onto the kitchen. 

Think stairs in current house ok at 42 deg and we were in bungalow previously! I think there are 13 risers in current house. Agree with the high ceilings, last place had 2550 and felt a lot better. I will have to see tallest eaves height i can get away with as I'd want eco trusses and decent ceilings if poss. I got AI to do the sums for me the other week I just cannot see 200mm cavity ever being worth it. I feel the same way about 3g tbh. When I looked at the sums the payback period is longer than the window will last although someone the other day was saying the costs between 2 and 3g wasn't as big as id expected. 

Oh sorry your front is the other way round my bad! And stairs not of kitchen what an idiot I was looking the wrong way. 

Edited by Oz07
Posted
17 minutes ago, Iceverge said:

image.thumb.png.e64e55aae0516c8fb172efa6e01c8076.png

 

image.thumb.png.5b95f5900c11be098ce98cf4bc0c654a.png

 

image.thumb.png.47baf0f01fef67db707853501088152c.png

 

A shrunken version of when we built. I really really hammered costs as it was our 3rd set of planning and I was trying to save money. 

 

400mm cavity wall for good U values at minimum cost. Some plans have walls 200mm wide total which might bite you when you come to a detailed design. Similarly some of the stairs would be very steep. I would allow a run to rise ratio of at least 10:7. With a 185 rise you'd need a 265 run. and if you have 2650 ceilings you'd need nearly 4m of stairs run. Ours is 191/250 rise to run and it's too steep. I can't make peace with stairs that aren't straight as they waste so much spaces floors. 

 

The plumbing is concentrated in one corner. All the waste pipes can run through the stud between the utility and the downstairs WC. 

 

The upstairs blockwork matches downstairs. Good for costs and noise.  The whole thing can be built with standards timber joists even with MVHR. Just drop the ceiling in the utility for services. 

 

A utility cloaks off the front door gets use all the time and a "walk through" design is far far better than one with corners as they always get blocked with crap. Sensible window spans mean you can use all off the shelf concrete lintels. £1000 would do the house. 

 

Every bedroom has cross ventilation and windows on two aspects which make them feel bigger than they are although this may not be possible in your situation. 

 

With a bit of DIY I would think you'd get  the above built for £250k. 

 

 

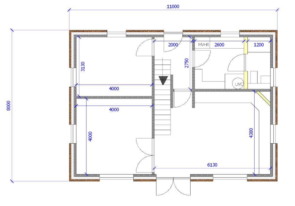
This could suit us the more I look at it. I think we'd have some better sizes than on that plan because we would be at 7.25 x 10.25 internally after plastering. 11x8m overall externally. Allowing for 375mm finished wall thickness. 

Posted

11m*8m externally buys you more options. 

 

Our external render sand and cement came to 20mm externally and internally 15mm. 375mm total wall width will be 140mm cavity which I don't think will meet regs. 

 

If you discount the external render you could have a 150mm cavity but this will rely on the dearer 032 batts and more expensive blocks to give you a true 0.18W/m²K.

 

200mm would allow you use 2 x 100mm 036 batts (@ £12/m² + Vat total) which are a cheap as they come and would result on less chance of screwing something up on site too. 200mm is the standard for cavity builds in Ireland with about a decade now. Noone here uses catnic lintels or cavity closers anymore. 

 

In terms of payback you're probably right. However in terms of comfort and noise I think 3g are worth it, same argument for MVHR. 

 

What external finish will you have? 

Posted
31 minutes ago, Iceverge said:

11m*8m externally buys you more options. 

 

Our external render sand and cement came to 20mm externally and internally 15mm. 375mm total wall width will be 140mm cavity which I don't think will meet regs. 

 

If you discount the external render you could have a 150mm cavity but this will rely on the dearer 032 batts and more expensive blocks to give you a true 0.18W/m²K.

 

200mm would allow you use 2 x 100mm 036 batts (@ £12/m² + Vat total) which are a cheap as they come and would result on less chance of screwing something up on site too. 200mm is the standard for cavity builds in Ireland with about a decade now. Noone here uses catnic lintels or cavity closers anymore. 

 

In terms of payback you're probably right. However in terms of comfort and noise I think 3g are worth it, same argument for MVHR. 

 

What external finish will you have? 

Brickwork. Last place had 150 cavity and passed 5 years ago think .18 u value. Medium dense blocks inside too no areated rubbish. Have english fabric targets changed since then?

 

Not much noise near this plot but @JohnMo made a good point about comfort sitting near them. Mvhr yeh probably right I had that in last place and couldn't really see the benefit, think its overhyped. That said I will have it again due to needing good airtightness anyway. 

Posted
3 hours ago, Iceverge said:

Noone here uses catnic lintels or cavity closers anymore. 

What do you guys close cavity with? Just so easy to order bba approved pre formed closers here. Assuming you just have concrete lintel and angle iron of brickwork. They have the thermally broken catnics here now the metal doesn't join between the two leafs. 

Posted

A strip of PIR wedged in the cavity  or more often now a J bead screwed into the window frame and plaster board slotted in and returned to the inner blockwork. 

 

Normally use 2 x seperate concrete lintels for each leaf but it's mostly blockwork near me. For brickwork a seperate steel lintel. 

 

Screenshot_20260308_213608_com_android_chrome_ChromeTabbedActivity.thumb.jpg.26b8c89d846e2ed5b6d003ce5456b86b.jpgScreenshot_20260308_213107_com_android_chrome_ChromeTabbedActivity.thumb.jpg.4544f4e5c51c9c1aa367cdd051f3495e.jpg

 

 

 

 

Posted
9 hours ago, Iceverge said:

A strip of PIR wedged in the cavity  or more often now a J bead screwed into the window frame and plaster board slotted in and returned to the inner blockwork. 

 

Normally use 2 x seperate concrete lintels for each leaf but it's mostly blockwork near me. For brickwork a seperate steel lintel. 

 

Screenshot_20260308_213608_com_android_chrome_ChromeTabbedActivity.thumb.jpg.26b8c89d846e2ed5b6d003ce5456b86b.jpgScreenshot_20260308_213107_com_android_chrome_ChromeTabbedActivity.thumb.jpg.4544f4e5c51c9c1aa367cdd051f3495e.jpg

 

 

 

 

Do you have to put a slither of dpc where the pir hits the brickwork? I like the closers tbf think they are neat. Probably a cold bridge though?

Create an account or sign in to comment

You need to be a member in order to leave a comment

Create an account

Sign up for a new account in our community. It's easy!

Register a new account

Sign in

Already have an account? Sign in here.

Sign In Now
×
×
  • Create New...