Jump to content

Recommended Posts

Posted
53 minutes ago, ETC said:

Why are you having a standing seam flat roof if you can’t see it?

 

I'm not.  The current plan is to have standing seam on the pitched roof sections only.  The flat roof covering has been specified as GRP, although I'm not convinced this is my best option.

 

I do wonder, whether having a 3 degrees standing seam roof over these 55m2 of flat roof areas might be no more expensive than GRP, because the standing seam team will be on site, anyway & it will be one less trade to worry about, one less thing to have to learn about & SS would likely be more robust than GRP.  My concern about anything other than metal, is birds pecking through it.  

Posted
8 minutes ago, Roger440 said:

Yes, of course. That would be felt, grp or epdm etc. Just playing with ideas at this stage,

 

The point @SBMS & I are trying to make is: if you fill in No 6, so you're asking Ubakus about a roof, rather than just the lower part of a roof, Ubakus will say it's not OK.

Posted
11 minutes ago, Tony L said:

 

The point @SBMS & I are trying to make is: if you fill in No 6, so you're asking Ubakus about a roof, rather than just the lower part of a roof, Ubakus will say it's not OK.

 

Did that. Made no difference whatsoever. Added a vcl internally as well. Still no change.

 

If moisture cant get in, how can it degrade?

 

Screenshot 2026-01-07 215646.png

Posted
22 minutes ago, Roger440 said:

 

Yes, i know i need a vapour barrier. But surely, between the plaster board and first layer of PIR.

 

Yes, clearly if there are gaps etc, that would be an issue. As id be building it myself, i can make sure thats not the case.

 

Problem is, ive got circa 300mm and need to use 200mm (ish) joists.

Not a vapour barrier - I was saying what Tony was saying in that you’re missing a roof covering which will be THE most vapour resistant covering in your makeup. 
 

in any event I think it’s because of the way ubakus calculates condensation. In theory if done as your makeup states:

 

Absolutely airtight foil pir

zero gaps at board edges, joist interfaces, fixings

no service penetrations

no ageing of tapes

no screw penetrations

no adhesive shrinkage 

no timber shrinkage 

no later on site adjustments

no settlement movement

 

in theory under the above then vapour transport is diffusion only. And diffusion through foil faced pir is negligible. Dew point is never reached at the deck - vapour cannot transfer from inside to outside so there’s nothing ubakus can see to condense. In practice - not possible. Also, not allowable by building inspector (for a reason - thousands of cold roofs built as per your makeup have failed) so probably a moot point?

Posted
6 minutes ago, Roger440 said:

 

Did that. Made no difference whatsoever. Added a vcl internally as well. Still no change.

 

If moisture cant get in, how can it degrade?

 

Screenshot 2026-01-07 215646.png

Moisture gets through (diffuses) through all the imperfections I listed above. 
 

Your makeup is on a knife edge. Take the 25mm down to 1mm and it’ll still show as no condensation likely. Remove one or both those layers and you’ll see condensation. The 25mm isn’t magic. It’s only magic in ubakus because it models It as one homogeneous entirely diffusion proof layer. I don’t think it models air movement, only diffusion.

Posted
3 minutes ago, SBMS said:

Not a vapour barrier - I was saying what Tony was saying in that you’re missing a roof covering which will be THE most vapour resistant covering in your makeup. 
 

in any event I think it’s because of the way ubakus calculates condensation. In theory if done as your makeup states:

 

Absolutely airtight foil pir

zero gaps at board edges, joist interfaces, fixings

no service penetrations

no ageing of tapes

no screw penetrations

no adhesive shrinkage 

no timber shrinkage 

no later on site adjustments

no settlement movement

 

in theory under the above then vapour transport is diffusion only. And diffusion through foil faced pir is negligible. Dew point is never reached at the deck - vapour cannot transfer from inside to outside so there’s nothing ubakus can see to condense. In practice - not possible. Also, not allowable by building inspector (for a reason - thousands of cold roofs built as per your makeup have failed) so probably a moot point?

 

Hmmm. But its not a cold roof is it?

 

Given the depth constraints, i cant achieve the required u value with either cold or conventional warm roof. Although cold roof is moot as i cant get cross ventilation. And whats there now, albeit with no insulation at all.

 

I reckon i can deal with most of your points except settlement. Timber shrinkage can be mitigated with gapotape or similar. Im not going to let your average builder loose on it. Im quite capable of a high standard of detailing. As you observe, the problem is moisture getting through. Surely then, the solution is not to let it through.

 

What to do?  Ive got 300mm. Thats it.

Posted (edited)
14 minutes ago, Roger440 said:

 

Hmmm. But its not a cold roof is it?

 

Given the depth constraints, i cant achieve the required u value with either cold or conventional warm roof. Although cold roof is moot as i cant get cross ventilation. And whats there now, albeit with no insulation at all.

 

I reckon i can deal with most of your points except settlement. Timber shrinkage can be mitigated with gapotape or similar. Im not going to let your average builder loose on it. Im quite capable of a high standard of detailing. As you observe, the problem is moisture getting through. Surely then, the solution is not to let it through.

 

What to do?  Ive got 300mm. Thats it.

Let’s be super clear. It absolutely is a cold roof because your structural deck is on the cold side of the insulation. That’s the definition of a cold roof. 
 

You almost certainly cannot negate airborne moisture getting through. No matter how well

you detail you will have 1mm gaps all over - eventually. Even if you detail it right on day one your timber will shrink and gaps will open up. So it’s not a ‘expert detail your way out of it’.

 

like I said - If you have building regs on your build this is academic. You won’t pass with an unventilated cold roof. Why don’t you just ventilate it if you’re restricted in height? Not ideal or robust for flat roofs though…

Edited by SBMS
Posted
8 minutes ago, SBMS said:

Let’s be super clear. It absolutely is a cold roof because your structural deck is on the cold side of the insulation. That’s the definition of a cold roof. 
 

You almost certainly cannot negate airborne moisture getting through. No matter how well

you detail you will have 1mm gaps all over - eventually. Even if you detail it right on day one your timber will shrink and gaps will open up. So it’s not a ‘expert detail your way out of it’.

 

like I said - If you have building regs on your build this is academic. You won’t pass with an unventilated cold roof. Why don’t you just ventilate it if you’re restricted in height? Not ideal or robust for flat roofs though…

My structural deck is IN the insulation. So i cant see its a cold roof. Acedemic though.

 

Still cant see why an internal VCL wont work. Thats what they are for. 

 

Cold roof. As you observe, far from ideal. Not going to have much ventilation space either once i have adequate insulation. Will need at least 200mm PIR given the joists in there. The roof is attached to a wall on 2 sides, (walls in L shape) protected from the prevailing wind. So ventilation might not even work.

 

What does everyone else do i wonder?

Posted

So my only option and hope for the best on ventilation flow (below)

 

Or 200mm composite steel panels. AI calculates i can just about do it on the span. Needs a real SE to check though.

 

this isnt helping the OP though.

 

 

Screenshot 2026-01-07 225349.png

Posted
11 minutes ago, Roger440 said:

My structural deck is IN the insulation. So i cant see its a cold roof. Acedemic though.

 

Still cant see why an internal VCL wont work. Thats what they are for. 

 

Cold roof. As you observe, far from ideal. Not going to have much ventilation space either once i have adequate insulation. Will need at least 200mm PIR given the joists in there. The roof is attached to a wall on 2 sides, (walls in L shape) protected from the prevailing wind. So ventilation might not even work.

 

What does everyone else do i wonder?

Where do you think your structural deck is in your makeup? 

Posted (edited)
6 minutes ago, SBMS said:

Where do you think your structural deck is in your makeup? 

 

Where it is in every cold roof? On the top. This is what the internet says is a cold roof. And what i currently have. Like this

Screenshot 2026-01-07 230509.png

Edited by Roger440
Posted
9 minutes ago, Roger440 said:

 

Where it is in every cold roof? On the top. This is what the internet says is a cold roof. And what i currently have. Like this

Screenshot 2026-01-07 230509.png

I ask because you said ‘my structural deck is IN the insulation’. It’s not. It’s above it. And in a warm roof it’d be under it.

Posted
3 minutes ago, SBMS said:

I ask because you said ‘my structural deck is IN the insulation’. It’s not. It’s above it. And in a warm roof it’d be under it.

 

Sorry, thought you were referring to my most recent post.

Posted

@Tony L

 

Looking at your build-up it's a fairly complex shape. 

 

Two things spring to mind on how your building will potentially fail and rot in future. 

 

1. Airtightness , Damp air will be carried by convection into the structure by poor airtightness.  

2. Thermal bridging.  The damp air will condense and rot the timbers. 

 

Good news though, both are readily solved with some thinking. 

 

1. Do your airtighness outside the structural elements of the build. 

2. Externally insualte the roof. 

 

 

This will make it very simple to get a good air barrier and avoid any cold bridging. 

 

 

 

 

 

 

 

 

Posted

Ok i think I have an idea. 

 

In simple terms...

 

Frame the whole structure as required by you SE. Probably site built looking at the drawings.

 

Start at the wall plate. 

 

image.thumb.png.3a7db6e6a114c60e046d2b74476f1786.png

 

 

 

Next sandwich a VCL. Something tough like  this.

 

 image.png.c067e302b36327356980b4321e89ffbf.png

 

image.thumb.png.c3e6d08a1935ef000993d159273912fd.png

 

 

 

Drop on the rafters. Terminating them at the wall plate. 

 

image.thumb.png.0c594ceaebff3ea6edf7ce6926ab6fcc.png

 

Continue framing the entire roof in this manor with timber sizes as demanded by the SE. 

 

 

Then sheath the enitre roof in 11mm OSB to carry a peel and stick OSB. Return your eaves and gable VCL segment to the main roof and the internal wall to form a complete airtight layer. This will give you an excellent chance at getting a continuous airtight layer.  Use the same method for the dormer roofs and cheeks too. Ensure you return the VCL to all windows and penetrations too. 

 

image.thumb.png.951b2644739a01b2b0d63aa3adb2088f.png

 

 

 

Add your rafter tails and gable overhangs.

 

image.thumb.png.3ba82a5e46ec2a9395347411c0a8b011.png

 

cover the entire roof and dormers with a layer of 100mm PIR. Cover the roof with a roofing membrane, everywhere including the flat bits and dormer cheeks. Doesn't really have to be breathable but something with self adhesive strips would help as you'll be fitting on top of the PIR. 

 

image.thumb.png.b6a9f682efca4b72bb48201e8a87867b.png

 

 

Mark the locations of the rafters carefully before and with 185mm screws tie 50X25 battens into the rafters.  Add cross battening to create a ventilated gap and support the metal roofing as required. 

 

image.thumb.png.5d4c1352c30aecdfd1c2c00eff6f2f2e.png

 

 

You can then add 100mm of mineral wool between the framing and rafters for a U value or about 0.14 over the whole roof. 

 

 

The most important thing is that you will have a great chance at airtightness and with the PIR externally you'll have excellent thermal bridging. If you have the space you can add more PIR as required externally but you'll need longer screws obviously. 

 

 

 

 

 

 

 

 

 

 

 

 

 

 

 

 

 

 

 

  • Like 1
Posted

 

I would add soffit vents on in the eaves and some slimline mushroom type vents in the roof to keep a good flow of air above the breather membrane. It doen't need to be over the top though as all it is doing is allowing the roof battens to dry. It's not dealing with buckets of warm moist internal air like old fashioned cold ventilated attics. 

  • Like 1
Posted
17 hours ago, Roger440 said:

As you observe, the problem is moisture getting through. Surely then, the solution is not to let it through.

 

Almost but not 100%.

 

You will have some moisture in there no matter what you do, be that from the timbers or a shower of rain during construction. 

 

You need to make sure your buildup lets the moisture out somehow. That can be inwards or outwards as required. 

 

 

 

  • Like 1
Posted
17 hours ago, Roger440 said:

So my only option and hope for the best on ventilation flow (below)

 

Or 200mm composite steel panels. AI calculates i can just about do it on the span. Needs a real SE to check though.

 

this isnt helping the OP though.

 

 

Screenshot 2026-01-07 225349.png

 

 

200mm composite panels would be an excellent solution. 

 

I have no idea why we don't use them more. Snobbery I expect. 

 

 

 

 

 

 

  • Like 1
Posted

@Iceverge,  I’m really grateful for your help on this.  I like the idea of all the structural elements being within the VCL. Thank you for showing the build-up stages, rather than one diagram of the finished make up.

 

Although your roof build up is thicker than I’d like, I think I can slim it down a little by replacing your 100 x 50 timbers under the standing seam with 18mm OSB/ply then, if I use the 150mm rafters my SE specified for the roof across the back, rather than the 200mm rafters the arch tec’ drew, the sloping roof at the back is only 29mm thicker than what’s been drawn, which should be easy enough to accommodate in the updated version of the BC/construction drawings.

 

Others may not like the 100mm mineral wall inside the VCL – I’m OK with this if you are.  I have two questions about this 100mm mineral wool:

 

1) Does the mineral wool sit on top of the plasterboard (which is where my arch tec’ has it in his flat roof build ups) or should it be pushed up against the 11mm OSB that’s sitting on top of the rafters?

 

2) Could I full fill between my rafters with mineral wool?  The SE has spec’d 150mm rafters at the back of the house & 200mm rafters at the front.  I don’t need a service void above the sloped ceiling sections.

 

 

I may have got this wrong, but when you say, “cover the entire roof & dormers with a layer of 100mm PIR”, I think you’re suggesting this should include the front dormer wall & cheeks as well, so the build-up is much the same as the roof you’ve drawn, but with the stud walls fully filled with insulation – is that right?

 

If so, I don’t much like the idea of my cross battens that will support my vertical cladding, hanging off 100mm of PIR - that would make the PIR a structural element.  I have seen C-shaped structural GRP channels, around 100mm deep, so I could investigate the cost of using these, vertically, against the outside of the dormer stud walls.  I could then cover the outside of the studs with PIR, tucked into the C-channels, cover all this structure in breather membrane, then affix my cross battens & cladding.  If all of the above is feasible then I could delete my arch tec’s dormer wall spec’ element, “140mm PIR cut in between studs at 400 centres”, & replace this with 140mm mineral wool, which would be much easier to fit between studs & noggins than PIR, leaving no air gaps & providing the added benefit of sound insulation.  I realise there’d still be some cutting of PIR to do around the outside, but there’d be no noggins & we could fit the first GRP channel, then the first board, then fit the next channel, pushing it up against the previous board – sounds easy.

 

 

GRP U-CHANNEL.jpg

Posted (edited)

No problem, 

 

2 hours ago, Tony L said:

, I think I can slim it down a little by replacing your 100 x 50 timbers under the standing seam with 18mm OSB/ply then

 

I have a layer of 50x25mm battens running up the rafters and closely spaced 100x25mm running across under the Standing Seam roofing. I 'm really not a fan of Ply in this location hard against the metal roofing and risks trapping some moisture between the ply and metal that spaced timber avoid. They deal much better with long term exposure and heat cycling than sheet materials too.You'd be saving 7mm by going to 18mm ply. 

 

 

2 hours ago, Tony L said:

if I use the 150mm rafters my SE specified for the roof across the back, rather than the 200mm rafters the arch tec’ drew

 

 

You may be able to get down to 100x50mm timbers at closer centres if you ask the SE. It's not impossible but it'll make little difference in the grand scheme of things.  In any case I would aim for 400cc to keep the spacing inside ok for plasterboard. Don't get lured into using imperial OSB 8x4 at 16" centres outside as it won't match the metric 1200x2400 plasterboard inside. 

 

2 hours ago, Tony L said:

Others may not like the 100mm mineral wall inside the VCL – I’m OK with this if you are

 

Completely fine so long as you have a very robust airtight layer in the buildup. With the PIR above the rafters the dew point will only reach the timbers at -1 externally. In the UK its massively unlightly to be less than this for more than a couple of weeks a year and with no convection through the structure (pucker airtightness)you'll never have an issue. 

 

image.thumb.png.f0079cfa84ed07e4ac0d812f465fa46b.png

 

2 hours ago, Tony L said:

Does the mineral wool sit on top of the plasterboard (which is where my arch tec’ has it in his flat roof build ups) or should it be pushed up against the 11mm OSB that’s sitting on top of the rafters?

 

Against the OSB. Full fill will ensure this. 

2 hours ago, Tony L said:

 

2) Could I full fill between my rafters with mineral wool?  The SE has spec’d 150mm rafters at the back of the house & 200mm rafters at the front.  I don’t need a service void above the sloped ceiling sections

 

Yes, it'd be fine unless you're relocating the house to the north pole. Dew point will never come in enough or for long enough to cause any issues. 


With this you don't need service cavities anywhere as the airtight layer is outbound of the studs. Just run wires through the rafters. 

 

 

2 hours ago, Tony L said:

I may have got this wrong, but when you say, “cover the entire roof & dormers with a layer of 100mm PIR”, I think you’re suggesting this should include the front dormer wall & cheeks as well, so the build-up is much the same as the roof you’ve drawn, but with the stud walls fully filled with insulation – is that right?

 

 

No i absolutely did! 

 

1. Frame the roof

2. Sheath with OSB and apply VCL and seal. 

3. Cover EVERYTHING in PIR and then breather membrane. 

4. Battens

5. Cladding

6. Wireing internally then mineral wool then plasterboard and skim. 

 

You may want to think about when you install windows and penetrations. I would do it after the VCL and before the PIR so you can make good the air barrier before the PIR is applied. 

 

2 hours ago, Tony L said:

I don’t much like the idea of my cross battens that will support my vertical cladding, hanging off 100mm of PIR - that would make the PIR a structural element.

 

I would suggest you run 100x25mm battens vertically over the cladding to distribute the thrust forces. You can use 200mm screws  horizontally and then a 25mm screw at 35deg incline to take the vertical load of the batten. You'll need to drill pilot holes but this is easily done if you first make a long drill bit and make up a jig for the angles. Fiber glass could work but it'll be expensive and harder to source than off the shelf materials. You wouldn't get as good a thermal envelope either, especially around windows as you'll need to use the vertical battens to secure any external header and jamb trims. 

 

image.thumb.png.c931b54ed27ac77d12e5e6c3823a8a4c.png

Edited by Iceverge
Posted (edited)

@Iceverge

I do like this roof build up, similar approach to our roof, I have included drawings including my fibreglass flat roof.

The drawings were all done by hand using Rotring pen! These are screen grabs.

200mm Rafters with Rockwool

75mm counter batten with Rockwool

35mm Isotherm T&G

Breather membrane

25mm Batten for air gap

Standing seam metal roof

 

On the inside of rafters

Vapour. barrier

11mm OSB

25mm Batten

Plasterboard

Screenshot 2026-01-08 at 20.45.58.png

Screenshot 2026-01-08 at 20.58.21.png

Edited by Nestor
  • Like 2
Posted (edited)
On 06/01/2026 at 20:23, Tony L said:

Due to planning constraints, my  new build is going to have 4 large flat roof areas – see roof plan, below. 

Critical and non negotiable design constraint. 

 

On 06/01/2026 at 20:23, Tony L said:

Here’s the arch tec’s first draft roof plan.

Very helpful intro as it helps folk like me visualise quickly. 

 

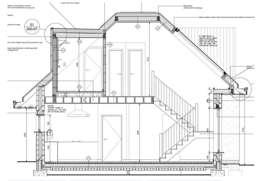
On 07/01/2026 at 16:44, Tony L said:

Here's a section drawing.

 

image.png.3f472da63102e6d3198717abdbdca9b2.png

 

Tony. I looked at this and I think what you are trying to do is too hard. To design something like this is really at the high end of technical design ability, it takes years of experience and a wide range of skills. I've thought, could I technically make this work including the SE stuff. I doubt it. Anyway, it's never going to get built as drawn unless you have a huge amount of money, an experienced Clerk of works and you can find a Contractor that is minded to do it and has the skills required. It is in my mind not going to happen and you will be chucking your money down the drain and experience huge frustation as that happens. To take this on as a designer and warranty my design I would be looking for a fair bit of the design fee up front. It's tough love but I think you are likely on a hiding to nothing. I love taking on challenging design but this one in it's current form is not going to work. 

 

The design insulation envelope and being able to achieve ventilation where you need it is in my view fundamentally flawed. 

 

image.png.eeeef1312539b7cf085d9deda79abeeb.png

 

 

This does not fly.. the rain will fall straight into the the cavity. The fundamental and most importantly, the practical installation / ventilation details are missing and these are the key elements in getting the whole thing to work. To draw well at this stage you need to know where the hard parts are, you can't kick them down the road and hope it will all sort itself out later! 

 

To summarise. There have been lots of useful and helpful suggestions from BH folk but I think you need to go back to the drawing board. First sit down with your SE and ask what structure do we need and check to see that you have enough slack to satisfy the planning constraints and the internal clearance for stairs, ventilation at window heads and maybe fire escape / protection for example. Then look at your roof coverings, can you simplify (make it more buildable) while not compromising the Architectural intent.  Where the standing seem zinc needs ventilation and how you do that, how you go about detailng basic interfaces, say between the flat roof and the pitched zinc. These are very hard to do properly, often you need to make compromises using engineering and technical judgement, then justify to say BC. 

 

Once you get a handle on that then you can look at the insulation. You mentioned the joist depth on the dormer. From time to time if I need less depth I just swap the timber for a cold formed Cee section, can shave off 50mm depth at a stroke. But this is the least of your worries! 

 

Please take a first step back and ask yourself, can I get someone to build this and at what cost. Don't feel embarressed, you have had a good go at you first concept design, got your head around how you insulate, you have learnt a lot.. It's OK to go back and review the whole design as the second time you have a much deeper understanding of the issues. My gut feeling is that if you go back to the drawing board and first principles you'll end up with a much better house, not compromise the Architectural intent and maybe at the same cost in the round, with less grief from a Contractor. You may be reluctant but ask yourself, say if I go back to the beginning, how much will that cost me compared with blindly trying to make what you have work, if your nature is to be stubborn then there is a price to pay for that privilage. 

 

 

 

 

Edited by Gus Potter
Posted

@Iceverge.  This is really good.  Thank you so much.  I may have to come back with a few more questions as I continue the work of preparing my document that will instruct the arch tec' how to draw my house properly, but I think your explanations may give me enough to get me most of the way there with this task.

Posted (edited)
23 minutes ago, Tony L said:

I may have to come back with a few more questions as I continue the work of preparing my document that will instruct the arch tec' how to draw my house properly

By all means do. I suspect that my post has not floated your boat!

 

Time will tell though. If you have the will to live with this then keep posting your details as interested in how you are going to overcome the interface details and ventilation challenges that lie ahead for you for the different types of roof construction.

 

I'll say again. What you are doing is very hard. Some of your detail shows what we call a hybrid roof. You have to be very careful here as others have warned. If you shift the dew point to the wrong side you are in trouble and BC will knock you back not least. 

 

image.png.0b6d221c5020d6161e937b80d87de58c.png

 

This detail looks simple as a general detail, but you have to ventilate the cavity area under the sloping portion. Have a go at detailing that out, try and work out how much that is going to cost build wise, what happens at the transition zone. There is no point in drawing the easy cross sections, the devil and cost comes at the interfaces. Be alert to this!

 

I'm not trying to pour cold water on your efforts, you have done well,  I'm warning you that unless you have loads of dosh, a huge amount of patience in finding a builder..  it ain't going to happen!

 

 

Edited by Gus Potter
Posted
9 minutes ago, Gus Potter said:

By all means do. I suspect that my post has not floated your boat!

 

Time will tell though. If you have the will to live with this then keep posting your details as interested in how you are going to overcome the interface details and ventilation challenges that lie ahead for you for the different types of roof construction.

 

I'll say again. What you are doing is very hard. Some of your detail shows what we call a hybrid roof. You have to be very careful here as others have warned. If you shift the dew point to the wrong side you are in trouble and BC will knock you back not least. 

 

image.png.0b6d221c5020d6161e937b80d87de58c.png

 

This detail looks simple as a general detail, but you have to ventilate the cavity area under the sloping portion. Have a go at detailing that out, try and work out how much that is going to cost build wise, what happens at the transition zone. There is no point in drawing the easy cross sections, the devil and cost comes at the interfaces. Be alert to this!

 

I'm not trying to pour cold water on your efforts, you have done well,  I'm warning you that unless you have loads of dosh, a huge amount of patience in finding a builder..  it ain't going to happen!

 

 

 

Thanks, @Gus Potter.  Dealing with your most recent post first:  I know how I want the vent at the top of the standing seam to work (& be drawn).  Just to remind you, I didn't do the drawing; an architectural technician drew it for me.  I was quite alarmed when I saw this detail in his draft drawings.  It's completely rubbish.  I thought he'd know how to do all this stuff.  To be fair, although his connection between sloped section & flat section had been given no thought at all, his detail drawing for this corner did actually show vents, but the system he'd designed was preposterous, ugly, expensive & funnelled rain in under the standing seam.  I have lost confidence in him, but I think if I put in the required effort, he will produce good drawings in the end.  I gave him my PP drawings (which I did draw myself) & my draft SE drawings (fortunately I have full confidence in my SE).  I also gave the him a load of notes & had a long meeting with him & he assured me he could do the work to a high standard.

 

So I know how the flat roof drip edge & standing seam vent will work together.  What I'm concerned about is the cold bridge created by the steel.  In the AT's drawing there's no insulation all along the top corner.  With the adjustments @Iceverge has suggested, there'll now be 100mm PIR insulation at this steel's top outer edge.  I wonder if this is enough.  I could drop the steel down 100mm & have a 50mm birdsmouth cut in near the end of the joist so 100mm of the joist would sit on top of the steel & this would add 100mm mineral wool over the steel too; the only thing lost is ceiling height from the very high ceiling over the landing, but that's not a big problem. 

 

 

Create an account or sign in to comment

You need to be a member in order to leave a comment

Create an account

Sign up for a new account in our community. It's easy!

Register a new account

Sign in

Already have an account? Sign in here.

Sign In Now
×
×
  • Create New...