IanR Posted May 26, 2016 Posted May 26, 2016 In my introduction I said I looked forward to sharing the highs and lows - well this week has been one full of highs! Monday it was finishing the EPS: Tuesday it was installing the UFH: Wednesday was finishing the steels: Thursday (today) was a BIG day - Concreting Day. First load in by 08:30 Power-floating starting at 11:00 while the last few loads are going in All finished and perfectly smooth by 17:00 I can't imagine there will be many weeks like this one. 2
IanR Posted May 27, 2016 Author Posted May 27, 2016 (edited) Found another image on the camera showing the finish of the floor, while the power-floating was being finished. Edited May 27, 2016 by IanR typo 1
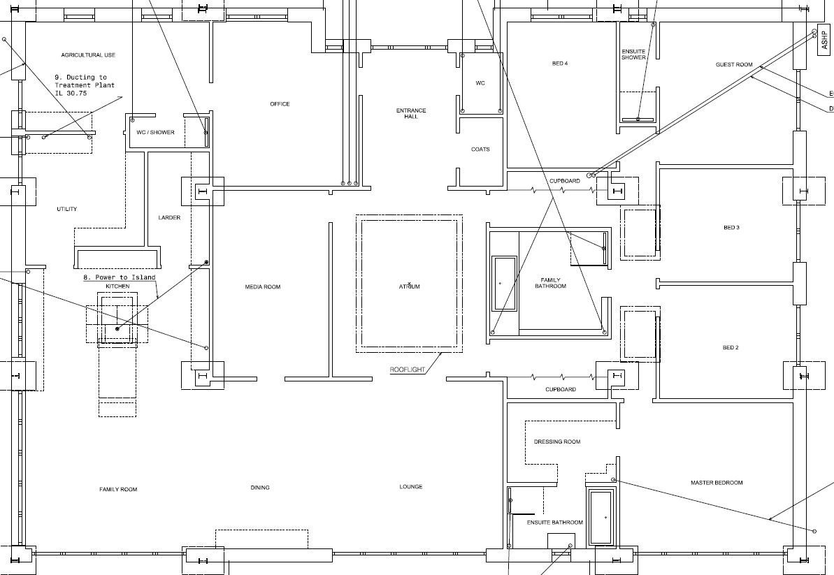
Redoctober Posted May 27, 2016 Posted May 27, 2016 Great photos and what a wonderful structure. Do you have any plans you could share? Interested to see how the space would be utilised. PW.
IanR Posted May 27, 2016 Author Posted May 27, 2016 (edited) Thanks @Redoctober , The structure is a portal-framed, ex-cowshed, I've grown to appreciate it... Here's a snapshot of the planned interior layout. Planning restrictions mean we'll be on a single level, although will have ceilings in some rooms with "Service Area" above. Edited May 27, 2016 by IanR typo
Calvinmiddle Posted May 27, 2016 Posted May 27, 2016 I have seen a converted barn smaller than your on The Modern House website http://www.themodernhouse.com/holiday-lets/nr-glastonbury/ I like the way that he used the roof to create over hangs and sheltered walkways by having the walls set back from the eaves. What are you doing for the roof? Will you just insulate under the existing roof or are you creating a "roof" under the existing one
DeeJunFan Posted May 27, 2016 Posted May 27, 2016 Great Pics Ian, Looks like a really great site and idea.
PeterW Posted May 27, 2016 Posted May 27, 2016 That looks like you laid the UFH then dropped A146 mesh over the top..? Is that correct..? Considering doing that as its got to be quicker than cable ties and easier to walk on. Out of interest, how deep is the EPS and what uValues are you targeting for the floor/walls/roof..?
IanR Posted May 27, 2016 Author Posted May 27, 2016 (edited) @Calvinmiddle I had seen the Glastonbury holiday home previously, and like what they have done. I looked at all options and have a very conservative LPA that insisted on maintaining the shape and form of the agricultural building. The banner image on my profile shows a rendering of what we have Approved. There will be a new timber frame warm roof under the existing. And then I'll ply deck the existing and put on a standing seam rainscreen. @DeeJunFan Thanks, We're very lucky with the site, especially as it was already part of the family Farm. @PeterW Yep, UFH clipped to the EPS and A193 mesh laid over the top. I felt there was less chance of any damage to the UFH pipe. Floor is 300mm EPS - 0.1 U Value Walls are 300mm blown cellulose fibre - 0.12 U Value. Roof is 350mm blown cellulose fibre - 0.11 U Value. Structure is cold-bridge free. Edited May 27, 2016 by IanR typo
DeeJunFan Posted May 27, 2016 Posted May 27, 2016 Didn't think I'd ever want to live in a cowshed, but I'd live in that cow shed 1
Recommended Posts
Create an account or sign in to comment
You need to be a member in order to leave a comment
Create an account
Sign up for a new account in our community. It's easy!
Register a new accountSign in
Already have an account? Sign in here.
Sign In Now