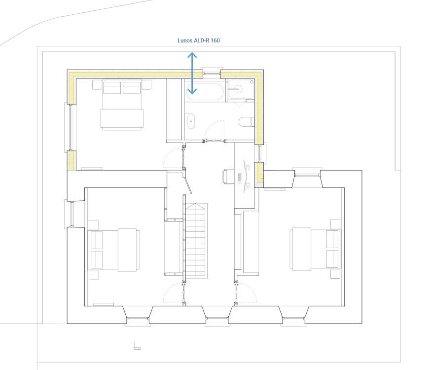
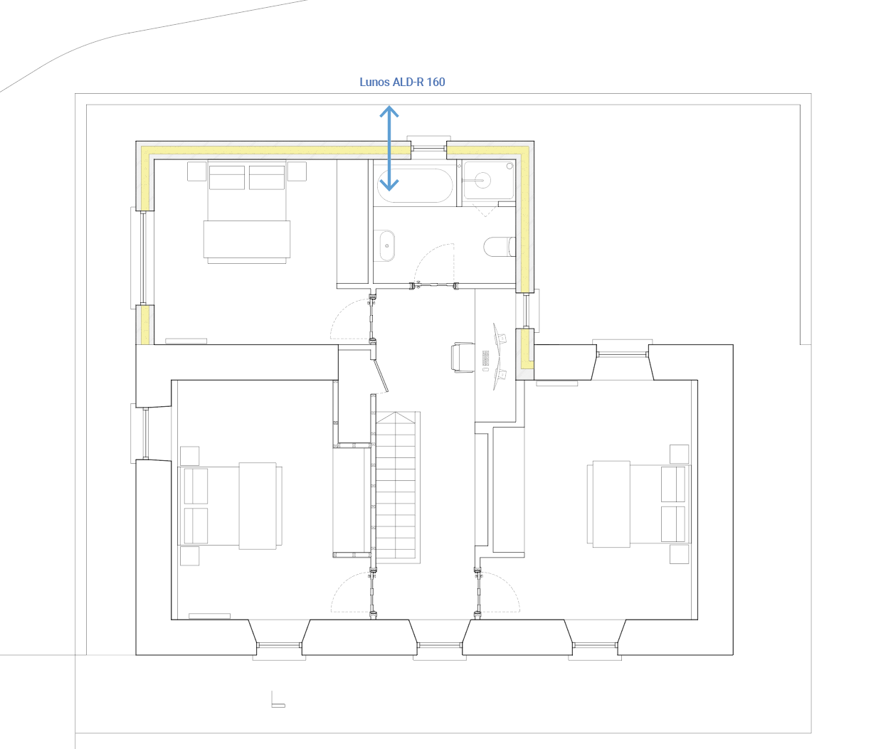
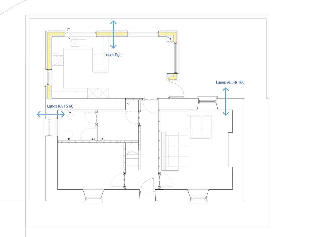
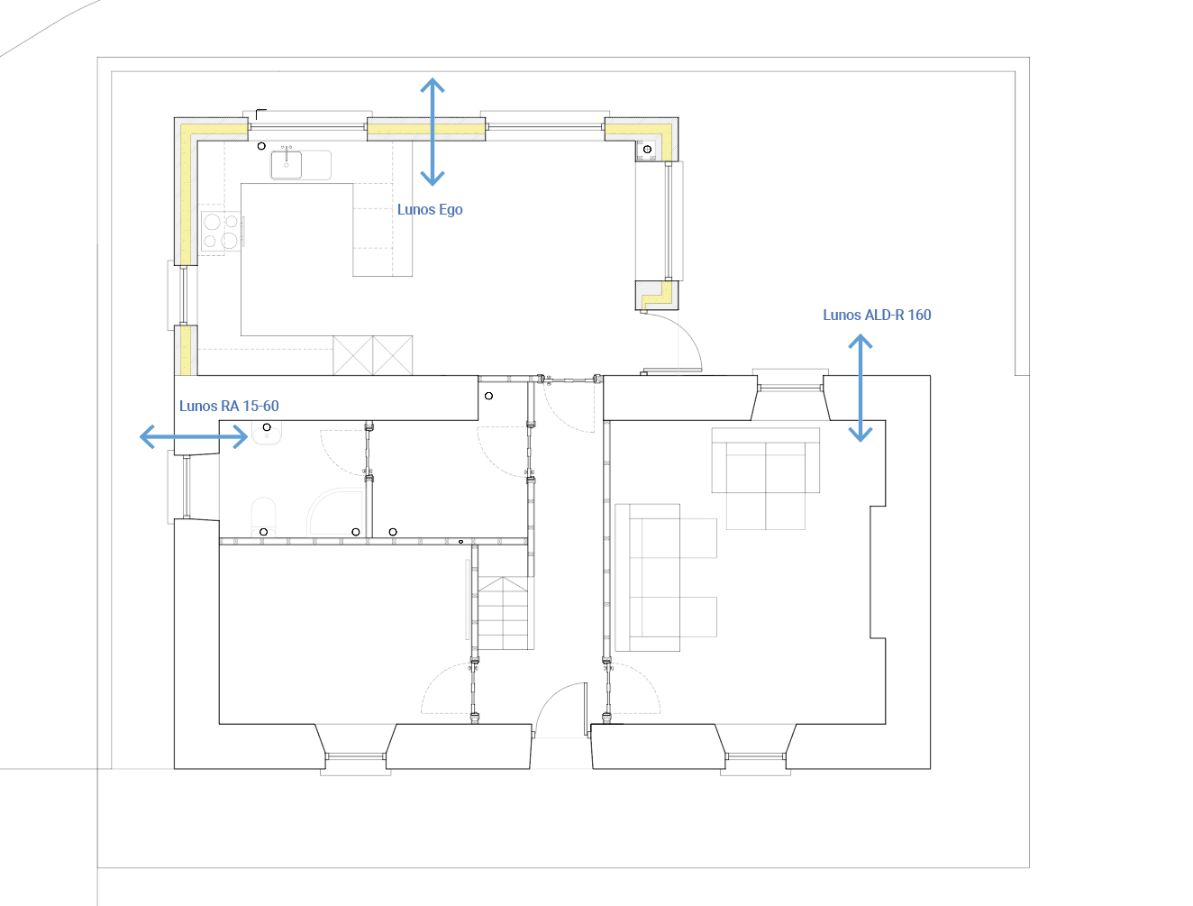
Bemak Posted October 14, 2025 Posted October 14, 2025 Looking to bottom out the ventilation strategy for a farmhouse I'm renovating at the moment. Had originally thought I'd go for a MEV system but I've since started to lean towards a dMEV system instead. The house is gutted at the moment so I'm thinking it would be a good time to start coring vents in the stone walls and get the mess over and done with. At the moment this is my thinking (based on the Lunos system. doesn't have to be Lunos). Note all windows will have trickle vents.: GROUND FLOOR passive vent in sitting room for stove extract wall vent in WC - which would also help vent the small utility adjacent (washing machine only, no dryer) another vent in the kitchen dining - the Ego is a new exhaust fan with heat recovery from Lunos kitchen will also have a separate extractor over hob. just not shown below. FIRST FLOOR extract vent in bathroom (Lunos ALD-R or Silvento). while all windows will have trickle vents, my feeling is I probably need another passive vent in the landing to balance pressure? I could core a vent in the wall at the bottom, to the left of the window but I would rather not have a vent here on the elevation. Could I provide a passive vent serving the landing via the attic/slate vent instead? if I need one? I originally had planned to duct a MEV system all around the house but I'm leaning towards the above because it seems a lot more straightforward? Appreciate any thoughts and advice.
JohnMo Posted October 14, 2025 Posted October 14, 2025 The units you are looking at are dMVHR, not dMEV. So they work in pairs one sucks for 20 secs and the other blows and then they reverse. You need them in every room and it gets super expensive. dMEV I would look at Greenwood CV2 or CV3 fans, cheap on eBay normally. Silent in normal operation and have smart humidity activated boost. Have one in each wet room. If wet rooms have a trickle vents close and seal closed. Dry rooms, need an air inlet. If a dry room has a window trickle vent upgrade to humidity activated ones. If not do a through wall humidity activated vent. You will not be able to modify the stove vent so that would stay as is. All internal doors need a 10mm or so undercut so you get ventilation even with doors closed. You shouldn't need anything for the halls as they will get through flow ventilation. 1
Bemak Posted October 14, 2025 Author Posted October 14, 2025 (edited) super - thanks for that. Those Greenwood fans look ideal. any recommendations for humidity activated passive vents? Edited October 14, 2025 by Bemak
JohnMo Posted October 14, 2025 Posted October 14, 2025 6 minutes ago, Bemak said: any recommendations for humidity activated passive vents? There are some here https://www.bpdstore.co.uk/search/?s=Humidity+sensitive 1
Mike Posted October 14, 2025 Posted October 14, 2025 1 hour ago, Bemak said: The house is gutted at the moment so I'm thinking it would be a good time to start coring vents in the stone walls and get the mess over and done with. An ideal time to install regular MVHR instead...
Bemak Posted October 14, 2025 Author Posted October 14, 2025 1 hour ago, Mike said: An ideal time to install regular MVHR instead... I don't think it will ever be airtight enough for it. I'm happy with a simple system like what John was recommending. Whatever works!
Mike Posted October 14, 2025 Posted October 14, 2025 7 hours ago, Bemak said: I don't think it will ever be airtight enough for it. It could be It's probably the cheapest intervention with the biggest payback that you could make. It's not difficult either, though it does require time and lots of attention to detail. There are various threads on here that give pointers. 1
allthatpebbledash Posted November 25, 2025 Posted November 25, 2025 On 14/10/2025 at 10:36, JohnMo said: The units you are looking at are dMVHR, not dMEV. So they work in pairs one sucks for 20 secs and the other blows and then they reverse. You need them in every room and it gets super expensive. dMEV I would look at Greenwood CV2 or CV3 fans, cheap on eBay normally. Silent in normal operation and have smart humidity activated boost. Have one in each wet room. If wet rooms have a trickle vents close and seal closed. Dry rooms, need an air inlet. If a dry room has a window trickle vent upgrade to humidity activated ones. If not do a through wall humidity activated vent. You will not be able to modify the stove vent so that would stay as is. All internal doors need a 10mm or so undercut so you get ventilation even with doors closed. You shouldn't need anything for the halls as they will get through flow ventilation. Would you say if fitting new windows as part of a renovation, the bathroom windows should be specified without trickle vents? What about a WC only? Would that need a dMEV unit or do without?
JohnMo Posted November 25, 2025 Posted November 25, 2025 29 minutes ago, allthatpebbledash said: Would you say if fitting new windows as part of a renovation, the bathroom windows should be specified without trickle vents? What about a WC only? Would that need a dMEV unit or do without? You need ventilation in all wetrooms to comply with building regs, a WC is a wetroom, so needs a fan. Specify wetroom windows without trickle vents. This follows the rules when you have continuous mechanical ventilation. Link: https://www.labc.co.uk/news/replacement-windows-and-trickle-vents 2) If the dwelling has continuous mechanical extract ventilation, installing trickle vents in any replacement windows which are not in wet rooms, with a minimum equivalent area of 4000mm2 in each habitable room 1
Recommended Posts
Create an account or sign in to comment
You need to be a member in order to leave a comment
Create an account
Sign up for a new account in our community. It's easy!
Register a new accountSign in
Already have an account? Sign in here.
Sign In Now