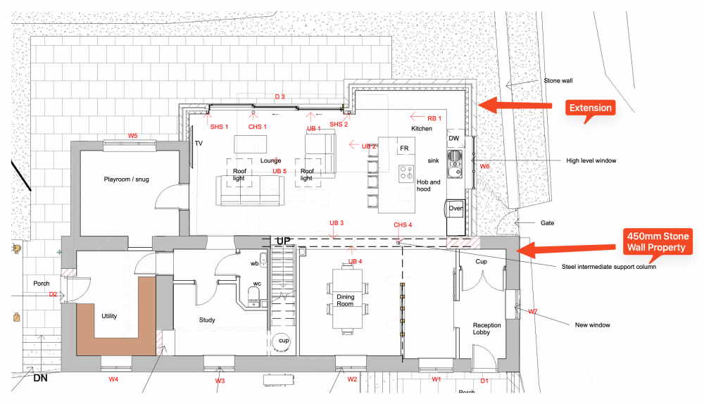
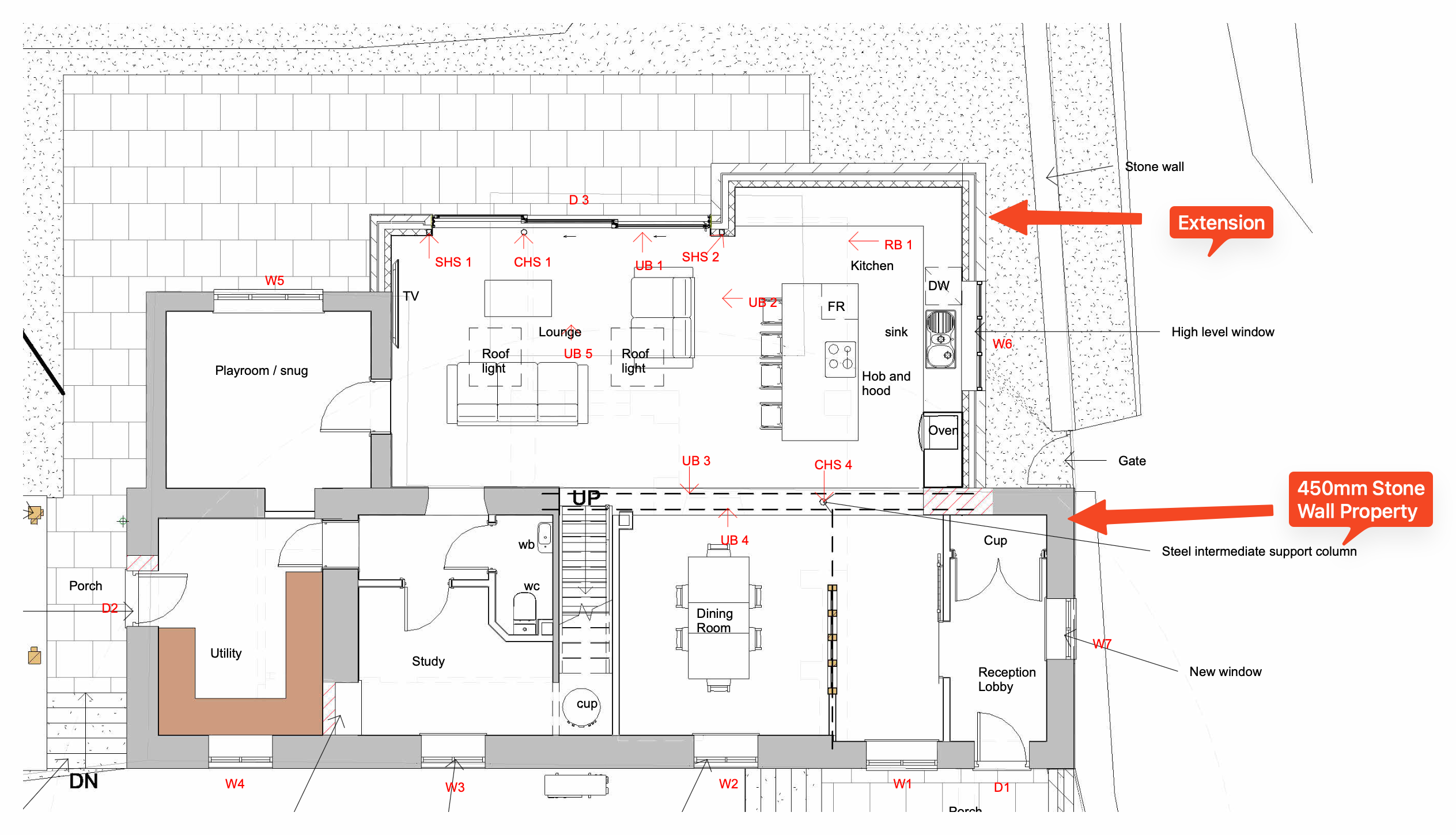
Lears Posted 9 hours ago Posted 9 hours ago Hi all, There's been a few threads recently on this but thought best to start a new one. I'm looking for some guidance on wall build up for an extension we're doing onto an old, solid stone wall property. The original build up was: Dot Dab plaster 100mm aircrete block - GTI Toplite 0.11 block 100mm EcoTherm insulation 25mm cavity using SureCav 25 150-160mm stonework finish The build has recently come back though to say the stonework comes in 115mm so I basically have the opportunity to change the cavity to 150mm full fill which is good news. From reading the rest of this brilliant forum though, I have 2 additional concerns: 1. Suspicion of aircrete blocks to boost U value performance, especially when this is a kitchen and will require some fixings into the wall (although we don't have a lot of wall mounted units planned) 2. Dot dab instead of wet plaster finish - We are planning to have MVHR and a focus on airtightness, coupled again with the fact most the room is a kitchen, I think it would be better to do a wet plaster finish rather than dot dab When I plug these into the U value calcs though, I'm getting around 0.19 u value but struggling to get any accurate estimate around the real U value of wet plaster finishes or the stonework finish. I can't really make the cavity any thicker as we have a stone wall to avoid and I don't want to loose any more internal area for the kitchen units. Lastly, I'm not 100% sure whether there's some improvement to make around the foundation blocks and DPC layer. I've seen a few posts recently suggesting it can be filled with EPS or using thermal blocks at the floor join to improve performance but I'm not sure if it's worth looking into further? Any guidance or thoughts would be greatly appreciated!
SteamyTea Posted 2 hours ago Posted 2 hours ago 6 hours ago, Lears said: struggling to get any accurate estimate around the real U value of wet plaster finishes or the stonework finish Look up the k-values. Mortar around 1 and dense plaster about 0.6.
Redbeard Posted 9 minutes ago Posted 9 minutes ago Bldg Regs require 0.18W/m2K for an extension. Yes, yes, yes!! Do wet plaster. If you must adhere plasterboard do it either on full-coverage adhesive (rare as rocking-horse poo) or with full perimeter bead and close cross-hatchings. Better still, don't use it!
Recommended Posts
Create an account or sign in to comment
You need to be a member in order to leave a comment
Create an account
Sign up for a new account in our community. It's easy!
Register a new accountSign in
Already have an account? Sign in here.
Sign In Now