ProDave Posted September 19, 2025 Posted September 19, 2025 At last, I am starting the final unfinished project, the car port. It will measure 6 metres by 6 metres comfortably giving covered parking for 2 vehicles. So now I am planning it's build which I hope to start soon. However it has got a bit more complicated due to changing one of our vehicles and it now needs a minimum height clearance of 3.2 metres under it. Some aspects of this will be dealt with on the hoof as we encounter them. But the first issue is the supporting posts. I already have 6 150mm square larch posts that have been sitting on my trailer for a few months after being delivered from the saw mill. These are to be the main structural uprights. The plan was to get my neighbour to fabricate steel post foot brackets, as he did for similar ones for the balcony. They were a simple U shaped bracket that bolted to the concrete and the post sat in and bolted through keeping it off the ground. But there is a complication this time. These are the posts on the garage side. I want them to be close to, but not touching the garage wall. The issue is this aligns them with a drainage channel that was cast into the concrete when poured. This serves to take rainwater falling on the concrete away to the rear and keeping it from puddling against the wall. I throw it open to the creativity of the forum to suggest a suitable bracket. It will have to straddle over that drainage channel but be fixed down to one side on the flat part of the concrete. The post will be secured to the wall near the top for stability. For clarity, the real posts are much longer, this is just a mock up of how the post will sit using a short offcut from the balcony posts.
saveasteading Posted September 19, 2025 Posted September 19, 2025 U shaped bracket, with 2 rods projecting down either side of the channel. Concrete base beneath the channel. OR set the bases to miss the channel and the timber construction revised to fit.
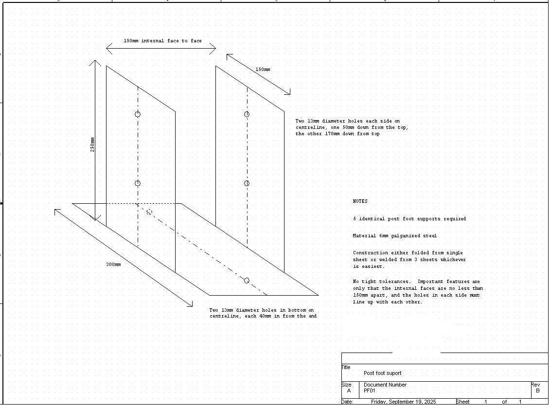
ProDave Posted September 19, 2025 Author Posted September 19, 2025 This is the best I can come up with The base will straddle over the drainage channel with a fixing either side on the flat concrete The sides plates are chosen so the fixing bolts go through the post parallel to the wall, making them easier to fit and anything sticking out is less of an ankle catcher. Can anyone see any issues or improvements?
saveasteading Posted September 19, 2025 Posted September 19, 2025 1 hour ago, ProDave said: any issues No that looks good. I had in mind it having bars sticking down but bolting down is much easier so I agree with that. I'd just say to make sure that the concrete base goes well under the channel, in case the load all wants to go down the narrow side at the wall. I've a feeling you can buy that ready made. Yes just looked and SF have them but only up to 100 x 100 (sabrefix) . Perhaps search further.
saveasteading Posted September 19, 2025 Posted September 19, 2025 You can get that ready made in half's. No bottom plate but with heavy fixings it might be OK. I can't cut and paste them for some reason.
Recommended Posts
Create an account or sign in to comment
You need to be a member in order to leave a comment
Create an account
Sign up for a new account in our community. It's easy!
Register a new accountSign in
Already have an account? Sign in here.
Sign In Now