Jump to content

MrWhat

Members
  • Posts

    8
  • Joined

  • Last visited

Personal Information

  • Location
    North Devon

Recent Profile Visitors

The recent visitors block is disabled and is not being shown to other users.

MrWhat's Achievements

New Member

New Member (2/5)

0

Reputation

  1. The plant room is also the utility room so that is the reason for the size.
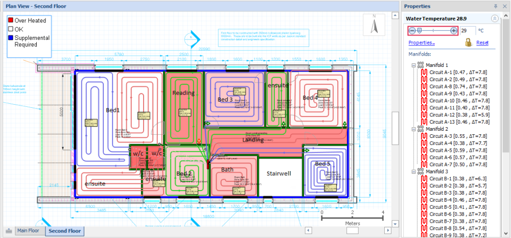
  2. Thanks, I have a decided to increase the spacing to 200mm so as to increase the capacity of the downstairs from 72 to 102 litres so hopefully wont need at volumiser. My rebar is 200mm grid too so that will also make installation easier. I have only two small loops now, all the others are over 70m. I will be doing all the stud work so will have to remember the pipes underneath!
  3. Internal walls are all stud walls so Im not concerned about pipes underneath really
  4. Thanks for your reply, I understand that adjusting temps will be slow but it will hopefully just be on all the time at a set temp. Upstairs has been added as a just in case. Like you say, there is a good chance that it wont be needed except in the bathrooms but as least its there. Good point, I will change the spacing to 150mm in the bathrooms/ensuites. I have kept the loops per room in case in the future room temp control was wanted in stead of the open system. It is actually one manifold upstairs and two down. They are all shown on each diagram so I have 22 loops and three manifolds. Ill have a look and see if I can reduce the number of loops a bit. The Gym has heating just in case it is used for something else later. I will isolate that.
  5. Ive just realised that I have location set to the nearest to me but it has a temperature of -0.4 which I assume is the lowest outside temperature I should expect. However, changing that to a different location with to a -3 temp has made little difference except to the heating load figure which as gone up from 4800 to 5383w. I assume this figure is a indication of what size ASHP I should get?
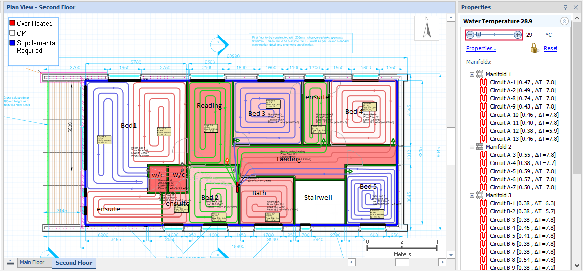
  6. Hi guys, I have been trying to get my head around designing my underfloor heating circuits in Loopcad but im concerned I have missed something! When I started the design Lopcad started with 300mm pipe spacing so I just went with that. At a water temperature of 29-30 degrees it seem that all of the rooms will be heated sufficiently, except for a couple in which I have reduced pipe spacing to get it warmer. It is a new build with good insulation. I am going to have an ASHP. I have not changed any flow rates or other settings in loopcad and am wondering if I should have changed something as Im surprised that the 300mm spacing seems to be sufficient? Here are some screen shots of the system design from Loopcad. Does this look correct?
  7. This is very interesting, we are just about to order a roof system and was going for this one (Terrano) in aluminium but maybe that will be even worse in the wind as its lighter. What is you roof buildup underneath the membrane?
  8. Hi makingprogress, did you have any luck with getting a low U value door? I am looking for the same for an linked garage and I can only find a steel 1.3 W(m2)k so far
×
×
  • Create New...