Jump to content

Galgt4

Members
  • Posts

    6
  • Joined

  • Last visited

Personal Information

  • Location
    Greater manchester

Recent Profile Visitors

The recent visitors block is disabled and is not being shown to other users.

Galgt4's Achievements

New Member

New Member (2/5)

1

Reputation

  1. Hi mate, BC said he’s happy for the pillars to be built up off the block from floor/top of slab level and only seemed bothered about insulating that section. This is why I’m questioning it. SE engineer just says make sure foundations ok with building control?? It’s built up with block from foundation to dpc then engineering brick. See image.
  2. Two questions, building single storey extension. Original inner slab is on block & beam and new outer is mesh slab (footings piled) 1. We have two engineering solid brick pillars to build for steel to sit on top. Took out both skins to build pillars and there is a cavity about 2ft deep. See image. Can we just shutter and concrete this void then lay dpm and build pillars on top? 2. What do we do with the rest of the cavity between original slab and new slab when knock through is complete to join both floors?
  3. I’ve just had a corner post made from IG lintels but this was for single storey brick extension. not sure if it’s a similar setup but the post sits in middle of cavity and the bifolds come with their own post which goes on outer leaf. Then you just box around it. may not help but it may give you an idea. Sorry can’t post full spec due to copyright. base plate bolts to foundation then bricked over
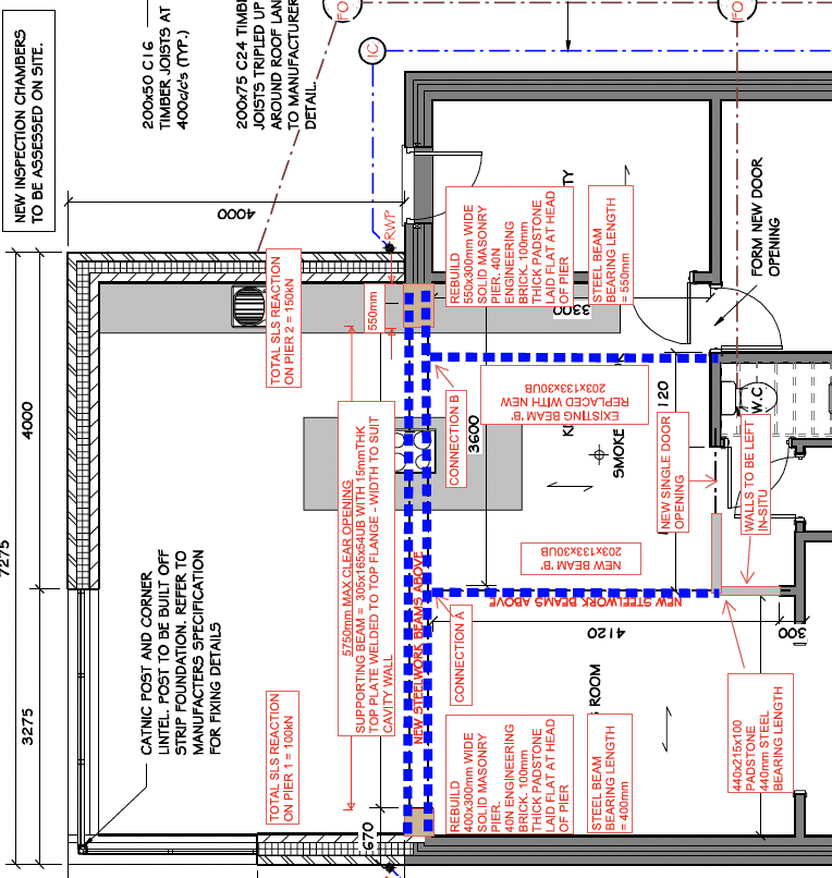
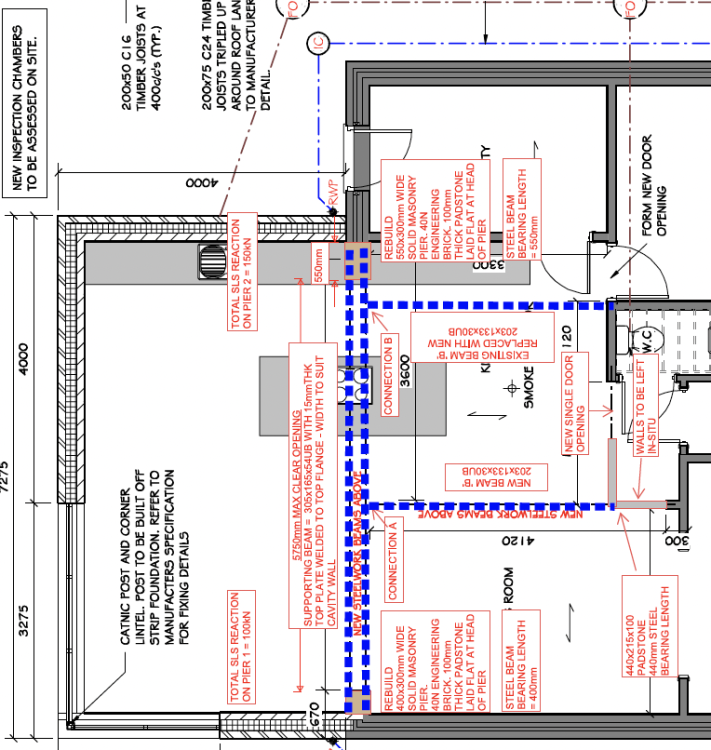
  4. Hi All, trying to figure out the best order to get these steels in shown on image in blue. internal existing and new beam b's have block walls on top upto roof supports then the big supporting beam across the back of the house. This weighs around 650kg and will be sat on engineering brick pillars either side. the existing beams will connect to the supporting beam with cleat connections. would you fit the large beam first and then the two internals? also steels will be going up in between joist so top of steel to top of joist height.
  5. Thanks mate. Can you get a timber that wide or will two be on top of each other in the web? agreed about the se
  6. Yo people first post on here. We are having an extension 7m x 3.5m. The SE has designed two solid brick piers out of engineering brick to sit a 305x165x54UB 6700mm which will also have two cleat connections for two other steels. my problem is this…….the main supporting beam as above is sitting central to the piers which brings the steel further away from the house joists. The SE has advised joining new joists to the existing but longer to fit in the web of the steel. the joist are 160mm and the web of steel is about 280mm. so the joist will be coming in to the top half of the web? How would I connect these?
×
×
  • Create New...